Edificio en Tribunales de lomas de zamora | BuscadorProp
🔍

¡Buscamos por vos! ¡Tu búsqueda a todas las inmobiliarias!

¡Quiero probarlo!

compartir Compartir:

  • facebook
  • whatsapp
  • envelope
  • link
Quitar la propiedad de favoritos Guardá tu propiedad favorita

Oficina en Alquiler en Banfield

direccion Diaz Tezano 1500, Banfield
direccion Ver en mapa
Alquiler
$ 1.800.000
casas Oficinas
Superficie total 140m2
Superficie cubierta 140m2

edificio en Tribunales de lomas de zamora

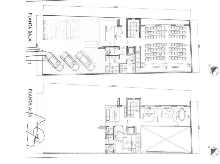
Propiedad lindera al edificio de los Tribunales de Lomas de Zamora y a la autopista “Presidente Juan Domingo Perón”.
Unidad con retiro de frente compuesto de jardín y espacio de cochera al aire libre para cuatro vehículos.

Planta baja:
Hall de entrada a través de blindex con batería de baños a la derecha. Salón auditorio con capacidad para cien (100) personas
sentadas yEspacio para guardado de enceres.

Planta alta: escalera y ascensor.
La planta superior consta de hall de recepción con vista al frente, una oficina con kichinet y baño y un segundo espacio amplio que
balconea hacia el salón auditorio con capacidad para dividir en tres oficinas adicionales.

La propiedad cuenta con calefacción central y sistema de alarma.

Alquiler+servicios
deposito a convenir
Garantia a convenir
ajuste cuatrimestral por ICL
IMPUESTO DE SELLOS: Deberá abonarse en el Colegio Público de Martilleros y Corredores de Lomas de Zamora de acuerdo con
alícuotas vigentes – Agente de recaudación (Régimen especial de Ingreso)

ubicacion Ubicación

direccion Diaz Tezano 1500, Banfield
  • codigo
    Código de la propiedad: DLO7522851
  • aviso
    Reportar aviso

¿Querés reportar algún problema con este aviso?

Seleccioná el motivo:

cerrar

Contactar a la inmobiliaria

Contactar a la inmobiliaria Cerrar modal

Di Paola Propiedades

edificio en Tribunales de lomas de zamora

Propiedad