355550 | Local en Banfield - GBA Sur | BuscadorProp
🔍

¡Buscamos por vos! ¡Tu búsqueda a todas las inmobiliarias!

¡Quiero probarlo!

compartir Compartir:

  • facebook
  • whatsapp
  • envelope
  • link
Quitar la propiedad de favoritos Guardá tu propiedad favorita

Local en Venta en Banfield

direccion Rincon 540, Banfield
direccion Ver en mapa
Venta
USD 97.000
casas Locales
2 baños
1 cochera
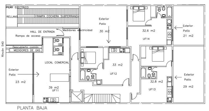
Superficie total 39m2
Superficie cubierta 39m2
1 piso

Local en Banfield

Actualmente con renta
Venta de Local en Banfield
Excelente local comercial de 39 m2 cubiertos + 23 m2 descubiertos con kichinette y baños

CMCPLZ Mat 3963 / 3964
CUCICBA Mat 8182 / 8184

Las fotos no son vinculantes ni contractuales. Las medidas y superficies son aproximadas y no pueden ser consideradas como definitivas ni tienen carácter contractual entre las partes, las mismas surgen del Estado Parcelario y la documentación correspondientes. Esta información (imágenes, superficies y medidas) se expone y publica a mero efecto orientativo.

Ubicación Ubicación

direccion Rincon 540, Banfield
  • codigo
    Código de la propiedad: 2234
  • aviso
    Reportar aviso

¿Querés reportar algún problema con este aviso?

Seleccioná el motivo:

cerrar

Contactar a la inmobiliaria

Contactar a la inmobiliaria Cerrar modal

Gazda Rossi Propiedades

Local en Banfield

Propiedad