Local en esquina con renta en Banfield Este | BuscadorProp
🔍

¡Buscamos por vos! ¡Tu búsqueda a todas las inmobiliarias!

¡Quiero probarlo!

compartir Compartir:

  • facebook
  • whatsapp
  • envelope
  • link
Quitar la propiedad de favoritos Guardá tu propiedad favorita

Local en Venta en Banfield

direccion Chacabuco Al 300, Banfield
direccion Ver en mapa
Venta
USD 55.000
$ 5.000 de expensas
casas Locales
1 Ambiente
1 toilette
Habitada
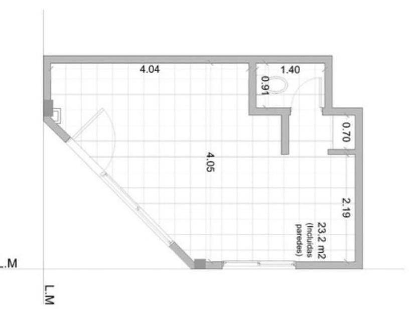
Superficie total 23m2
Superficie cubierta 23m2
1 piso
Disposición Frente
Orientación Sur-este

Local en esquina con renta en Banfield Este

Chacabuco 395 esquina Viamonte. Local en esquina de 23.2 m2 totales, con baño y espacio para kitchinette, a estrenar, doble vidriera, divisible. 
Muy buena ubicación,  Ideal profesional.
venta u$s 55.000,- // 
Comercializa Pilares Propiedades
TEL 4248-7799//4202-8422
WSAPP//CEL 1567178336
EMAIL info@pilarespropiedades.com.ar

ubicacion Ubicación

direccion Chacabuco Al 300, Banfield
  • codigo
    Código de la propiedad: PLO4157860
  • aviso
    Reportar aviso

¿Querés reportar algún problema con este aviso?

Seleccioná el motivo:

cerrar

Contactar a la inmobiliaria

Contactar a la inmobiliaria Cerrar modal

Pilares Propiedades

Local en esquina con renta en Banfield Este

Propiedad