Lote en venta en Canning - Barrio San Ant... | BuscadorProp
🔍

¡Buscamos por vos! ¡Tu búsqueda a todas las inmobiliarias!

¡Quiero probarlo!

compartir Compartir:

  • facebook
  • whatsapp
  • envelope
  • link
Quitar la propiedad de favoritos Guardá tu propiedad favorita

Lote / Terreno en Venta en Canning

direccion San Antonio, Canning
direccion Ver en mapa
Venta
USD 19.000
casas Lotes / Terrenos
cochera
Superficie total 600m2

Publicado hace más de un año

Lote en venta en Canning - Barrio San Antonio

 Lote en venta en barrio San Antonio, Canning

Valor: Anticipo de USD 19.000 + CUOTAS + REFUERZOS EN PESOS. Tanto las cuotas como los refuerzos son ajustables al CAC.
Entrega: Año 2025.
Notas: *El valor publicado corresponde al valor del anticipo.

Acerca del barrio:
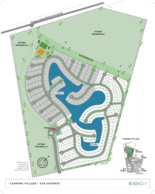
Ubicado a sólo 40 km de Capital Federal y con rápido acceso por autopista, Canning Village despliega su potencial en una tierra en pleno auge. Un masterplan de 4 barrios que resulta ideal para aquellos que buscan tranquilidad, y contar con las características que se destacan de las grandes ciudades: restaurantes, centros comerciales, colegios de educación bilingue y desarrollos urbanos que promueven los deportes y la vida social.
San Antonio es el nuevo lanzamiento de Eidico en Canning Village, siendo este uno de los cuatro barrios junto a San Simón, San Felipe y San Roque los cuales se encuentran 100% suscritos. Se encuentra localizado entre las rutas 58 y 52 y se proyecta desarrollar un boulevard de conectividad para ambas rutas. Será de acceso público y brindará un mejor acceso. El desarrollo es de 35 hectáreas totales compuesto de 290 unidades teniendo cada una un total de 650 m2 aproximados.
Servicios y amenities:
-Redes subterráneas de electricidad, agua, cloacas y gas.
-Asfalto con cordón cuneta
-Laguna de 5ha
-SUM
-Sector deportivo

Financiacion Financiación

  • Anticipo y cuotas

Comodidades Comodidades

  • pileta

    Con pileta

  • parrilla

    Con parrilla

  • patio

    Con patio

  • jardin

    Con jardin

Ubicación Ubicación

direccion San Antonio, Canning
  • codigo
    Código de la propiedad: M764
  • aviso
    Reportar aviso

¿Querés reportar algún problema con este aviso?

Seleccioná el motivo:

cerrar

Contactar a la inmobiliaria

Contactar a la inmobiliaria Cerrar modal

Marquina Propiedades

Lote en venta en Canning - Barrio San Antonio

Propiedad