Departamento en Venta MONOAMBIENTE | BuscadorProp
🔍

¡Buscamos por vos! ¡Tu búsqueda a todas las inmobiliarias!

¡Quiero probarlo!

compartir Compartir:

  • facebook
  • whatsapp
  • envelope
  • link
Quitar la propiedad de favoritos Guardá tu propiedad favorita

Departamento en Venta en Boedo

direccion Carlos Calvo 4201. Entre Jose Marmol Y Muñiz, Boedo
direccion Ver en mapa
Venta
USD 59.900
casas Departamentos
1 Ambiente
Sin cochera
Superficie total 30m2
Superficie cubierta 27m2

Departamento en Venta MONOAMBIENTE

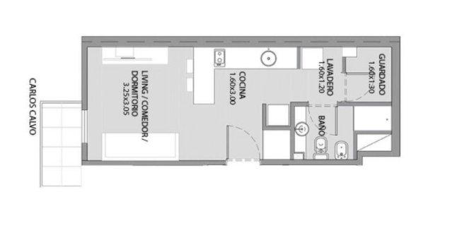
Venta de Departamento MONOAMBIENTE en Boedo, Capital Federal. OPORTUNIDAD! ÚNICA UNIDAD CON PRECIO ESPECIAL!!! Venta de semipiso a estrenar. Entrega inmediata. Excelente ubicación, a dos cuadras de Av San Juan y 2 cuadras de Av La Plata. Gran variedad de medios de transporte, amplias lineas de colectivos, estación de subte linea E "Av La Plata", comercios y establecimientos educativos. Departamento constituido por 30 m2 totales distribuidos en ambiente de 3.25x3.05 con salida al balcón de 3.00x1.00, cocina integrada de 3.00x1.60 más lavadero de 1.60x1.20, baño completo y sector de guardadodespensacloset. El edificio es totalmente eléctrico. Se encuentra equipado con bajomesada, artefacto de cocina, sanitarios, vanitory y termotanque. También disponibles departamentos de dos ambiented semipiso y tres ambientes piso exclusivo.





XINTEL (MYG-MYG-295)

ubicacion Ubicación

direccion Carlos Calvo 4201. Entre Jose Marmol Y Muñiz, Boedo
  • aviso
    Reportar aviso

¿Querés reportar algún problema con este aviso?

Seleccioná el motivo:

cerrar

Contactar a la inmobiliaria

Contactar a la inmobiliaria Cerrar modal

Merchan & Gluck Negocios Inmobiliarios

Departamento en Venta MONOAMBIENTE

Propiedad