636771 | Excelente Departamento de 3 Ambie... | BuscadorProp
🔍

¡Buscamos por vos! ¡Tu búsqueda a todas las inmobiliarias!

¡Quiero probarlo!

compartir Compartir:

  • facebook
  • whatsapp
  • envelope
  • link
Quitar la propiedad de favoritos Guardá tu propiedad favorita

Departamento en Venta en Adrogué

direccion Drumond Al 1000 Edificio Lyon, Adrogué
direccion Ver en mapa
Venta
USD 186.000
+ $ 120.000 expensas
casas Departamentos
3 Ambientes
2 dormitorios
1 toilette
1 baño
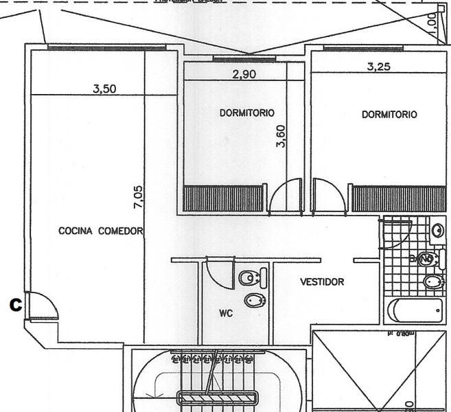
Superficie total 92m2
Superficie cubierta 82m2
1 piso
Disposición Interno
Orientación Este

Excelente Departamento de 3 Ambientes a la venta Lyon en Adrogué

Imperdible e inmejorable opción de departamento en el Edificio Lyon de Adrogué, a estrenar. Ofrecemos este departamento de 3 ambientes que consta de amplisimo estar-comedor, cocina completa, 2 dormitorios con placards y con baño completo y toilette. Cocheras cubiertas opcionales. El edificio cuenta con una fachada de prestigio, importanta hall de entrada, piscina, solarium, quincho con parrilla para su disfrute.

Comodidades Comodidades

  • pileta

    Con pileta

  • parrilla

    Con parrilla

  • wifi

    Wifi

  • calefaccion

    Calefacción

  • solarium

    Solarium

Ubicación Ubicación

direccion Drumond Al 1000 Edificio Lyon, Adrogué
  • codigo
    Código de la propiedad: MYR9365
  • aviso
    Reportar aviso

¿Querés reportar algún problema con este aviso?

Seleccioná el motivo:

cerrar

Contactar a la inmobiliaria

Contactar a la inmobiliaria Cerrar modal

Diaz Mayer & Brie Propiedades

Excelente Departamento de 3 Ambientes a la venta Lyon en Adrogué

Propiedad