639671 | |EDIFICIO EIFER X| | PREMIUM| |FR... | BuscadorProp
🔍

¡Buscamos por vos! ¡Tu búsqueda a todas las inmobiliarias!

¡Quiero probarlo!

compartir Compartir:

  • facebook
  • whatsapp
  • envelope
  • link
Quitar la propiedad de favoritos Guardá tu propiedad favorita

Departamento en Venta en Mar de Ajó

direccion |Edificio Eifer X| | Premium| |Frente Al Mar| |Frente Al Muelle|, Mar De Ajó
direccion Ver en mapa
Venta
USD 107.600
Sin expensas
casas Departamentos
2 Ambientes
1 dormitorio
1 baño
1 cochera
Superficie total 52m2
Superficie cubierta 40m2
Disposición Frente
Orientación Este
Zonificación EXCELENTE

|EDIFICIO EIFER X| | PREMIUM| |FRENTE AL MAR| |FRENTE AL MUELLE|

Edificio Eifer X

5°PISO 2 AMB CON COCHERA FRENTE AL MAR



¡Edificio de categoria en Av. Costanera al 800!

ENTREGA AGOSTO 2027

*7 Pisos*

*17 Unidades funcionales*

*Primer piso: 2 unidades funcionales. Una de 2 y otra de 3 ambientes**SUM y gimnasio*

*Segundo al quinto piso: 3 unidades funcionales por piso. Una de 2 ambientes y dos de 3 ambientes*

*Sexto piso: Dos semipisos de 4 ambientes*

*Septimo piso: Pent-House*

*18 cocheras en planta baja semicubiertas y descubiertas*

El mismo se ubica entre medianeras,en un terreno con medidas de 15 metros del frente y 40 metros de fondo. En este se emplazara un edificio de viviendas multifamiliares con calidad en diseño y detalles de categoria, lo cual hacen de este una excelente propiedad para vivir, no solo por estas cualidades mencionadas a continuación,sino también por su excelente ubicación con vista al muelle de pescadores de la localidad de Mar de Ajo, sobre la icónica calle Costanera, pudiendo de esta manera apreciar el mar en todo momento.

• Planta Baja cuenta con un amplio hall de acceso,el mismo equipado con un ascensor de ultima generación,

escalera principal, sala de maquinas/medidores,5 bauleras y 18 cocheras alternadas entre semi-cubiertas

y descubiertas.

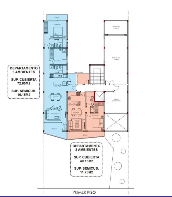
• En el primer piso, se encuentran 2 unidades funcionales, una de ellas de 2 ambientes y la otra de 3

ambientes, ambas con vistas al mar, en este nivel también se ubica un S.U.M. y un Gimnasio, ambas como

amenities de la propiedad.

• Sobre este nivel se encuentran 4 plantas de iguales divisiones, cada una de estas posee 3 unidades

funcionales,2 de ellas de 3 ambientes y una de ellas de 2 ambientes,todas con vista al mar,amplias medidas

y balcones con distintas comodidades.

• En el sexto piso se encuentran 2 semi-pisos de amplias medidas y comodidades, ambos poseen 4

ambientes,vista al mar y amplios balcones ademas de otras características que los destacan del resto.

• En el séptimo piso se encuentra un pent-house, por ende de calidad muy superior con distintas

características, materiales y demás detalles que lo destacan del resto de las unidades funcionales, este

cuenta con una terraza privada

SERVICIOS DEL EDIFICIO

• Portero eléctrico.

• Portón de garaje automático a control remoto.

• Cocheras fijas semi-cubiertas y descubiertas.

• Iluminación con sensores de movimiento en áreas comunes y cocheras.

• Bauleras

AMENITIES DEL EDIFICIO

• Gimnasio privado de ultima generacion en primer piso

• Salon de usos multiples en primer piso

TERMINACIONES DE LOS DEPARTAMENTOS DESDE EL 1ro AL 6to PISO.

• Balcónes amplios con vista al mar en todas las unidades, algunas tambien contaran con parrilla.

• Pre-instalacion para equipos de Aire Acondicionado frío/calor en los ambientes mas solicitados.

• Agua caliente individual por termotanque electrico marca SAIAR, RHEEM o similar.

• Carpintería de aluminio marca ALUAR con DVH, modelo MODENA RPT o similar.

• Yeseria y cielorrasos suspendidos marca DURLOCK, KNAUF o similar.

• Puertas interiores marca OBLAK o similar.

• Pomelas y herrajes en acero inoxidable marca CURRAO o similar.

• Porcellanato rectificado respetando diseño y medidas marca VITE,TENDENZA,CERRO NEGRO o similar,

en pasillos, cocina, comedor y estar de todas las unidades.

• Ceramico con terminación rectificado de 1ra calidad marca TENDENZA, CERRO NEGRO o similar, en

baños, espacios comunes, balcones de todas las unidades.

• Mesadas de GRANITO IMPORTADO o superior en todas las unidades.

COCINA:

*Anafe de 4 placas de teflon y horno electrico separado

*Bajo mesada y alacenas de primera calidad

*Mesadas de granito importado

*Pileta de acero inoxidable

*Griferia: monocomando cierre ceramico

BAÑOS:

*Revestimiento de piso porcelanatto rectificado de primera calidad. Revestimiento de pared porcelanatto rectificado

*Griferia: Monocomando con cierre ceramico

ESTAR Y DORMITORIOS:

*Estar con revestimiento de piso en porcelanato rectificado

*Dormitorios al igual que el estar o con pisos flotantes

¡MATERIALES DE PRIMERA CALIDAD Y DURABILIDAD!

INSTALACIONES:

*Calefaccion y refrigeracion

*Preparacion de servicios comunes para la conexion de television por cable

*Canalizacion y cajas para T.V por cable e internet en todos los ambientes

*Instalacion electrica:Tableros seccionales en cada unidad funcional, con proteccion termo magnetica y disyuntor diferencial

*Sistema de agua caliente individual mediante termotanque electrico

*Cañerias tanto para desague cloacal como para instalacion sanitaria.

VALORES Y DISPONIBLES:

PRIMER PISO:

UF1: 2 AMBIENTES. SUP. CUBIERTA: 40.15 M2 SUP. SEMICUBIERTA:11.75M2 SUP TOTAL: 52M2 ***CONTADO: USD 65.000 *** FINANCIADO:USD 75.000

UF2: 3 AMBIENTES. SUP CUBIERTA:72MS SUP. SEMICUBIERTA:16MS SUP TOTAL: 88M2 ***CONTADO: USD .*** FINANCIADO: USD .000(VENDIDO)

SEGUNDO PISO:

UF3: 3 AMBIENTES. SUP CUBIERTA: 70.80M2. SUP SEMICUBIERTA:11.40M2. SUP TOTAL:83M2 ***CONTADO: 132.800*** FINANCIADO: USD 152.700

UF4: 2 AMBIENTES . SUP CUBIERTA: 40.15M2. SUP SEMICUBIERTA: 11.70M2. SUP TOTAL: 52M2 ***CONTADO: USD 83.200*** FINANCIADO: USD 95.600

UF5: 3 AMBIENTES. SUP CUBIERTA: 72.60M2. SUP SEMICUBIERTA: 15.45M2. SUP TOTAL: 88M2 ***CONTADO: 140.800*** FINANCIADO: USD161.000

TERCER PISO:

UF6: 3 AMBIENTES. SUP CUBIERTA: 70.80M2. SUP SEMICUBIERTA:12.61 M2. SUP TOTAL:84M2 ***CONTADO: USD142.800*** FINANCIADO:USD 164.200

UF7: 2 AMBIENTES. SUP CUBIERTA: 40M2. SUP SEMICUBIERTA:10 M2, SUP TOTAL:50M2 *** (VENDIDO)

UF8: 3 AMBIENTES. SUP CUBIERTA :72.60 M2 SUP SEMICUBIERTA: 16.15M2, SUP TOTAL: 87M2 ***CONTADO: USD 147.900*** FINANCIADO: USD 170.000

CUARTO PISO:

UF9: 3 AMBIENTES.. SUP CUBIERTA: 70.80M2 SUP SEMICUBIERTA:11.40M2. SUP TOTAL: 83M2 ***VENDIDO

UF10:2 AMBIENTES. SUP CUBIERTA: 40.15M2 SUP SEMICUBIERTA : 11.70M2. SUP TOTAL:50M2 *** VENDIDO

UF11:3 AMBIENTES. SUP CUBIERTA: 72.60M2 SUP SEMICUBIERTA: 15.45M2. SUP TOTAL: 87 M2 ***VENDIDO

QUINTO PISO:

UF12: 3 AMBIENTES. SUP CUBIERTA: 70.80 M2 SUP SEMICUBIERTA: 11.40M2 SUP TOTAL: 84M2 ***CONTADO: USD 151.200 *** FINANCIADO: USD 173.900

UF13:2 AMBIENTES. SUP CUBIERTA:40.15M2 SUP SEMICUBIERTA: 11.70M2 SUP TOTAL: 52M2 ***CONTADO: USD 93.600*** FINANCIADO: USD 107.600

UF 14:3 AMBIENTES. SUP CUBIERTA 72.60m² : SUP SEMICUBIERTA:16.15M2 SUP TOTAL:89M2 ***CONTADO: USD 156.600*** FINANCIADO: USD 180.000

SEXTO PISO:

UF15: 4 AMBIENTES SUP. CUBIERTA: 89.35M2 SUP SEMICUBIERTA:20.35M2 SUP TOTAL:110 M2 ***CONTADO: USD 220.000*** FINANCIADO:USD 253.000

UF16: 4 AMBIENTES SUP CUBIERTA: 94.70M2 SUP SEMICUBIERTA: 19.05M2 SUP TOTAL: 114M2 ***CONTADO: USD 228.000*** FINANCIADO: USD 262.000

SEPTIMO PISO:

*4 AMBIENTES SUP. CUBIERTA 170.62M2 SUP. SEMICUBIERTA: 18.10M2 *VENDIDO*

¡HASTA 24 CUOTAS! NO DUDES EN CONSULTARNOS

Comodidades Comodidades

  • pileta

    Con pileta

  • parrilla

    Con parrilla

  • mascota

    Acepta mascotas

  • wifi

    Wifi

  • balcon

    Con balcón

  • aireacondicionado

    Aire acondicionado

  • ascensor

    Ascensor

Ver todaschevron-down
Ver menoschevron-up

Ubicación Ubicación

direccion |Edificio Eifer X| | Premium| |Frente Al Mar| |Frente Al Muelle|, Mar De Ajó
  • codigo
    Código de la propiedad: Costanera al 800 Mar de Ajo Norte AP6519444
  • aviso
    Reportar aviso

¿Querés reportar algún problema con este aviso?

Seleccioná el motivo:

cerrar

Contactar a la inmobiliaria

Contactar a la inmobiliaria Cerrar modal

Rodrigo Quesada

|EDIFICIO EIFER X| | PREMIUM| |FRENTE AL MAR| |FRENTE AL MUELLE|

Propiedad