Venta Ph 3 ambientes en Lomas de Zamora c... | BuscadorProp
🔍

¡Buscamos por vos! ¡Tu búsqueda a todas las inmobiliarias!

¡Quiero probarlo!

compartir Compartir:

  • facebook
  • whatsapp
  • envelope
  • link
Quitar la propiedad de favoritos Guardá tu propiedad favorita

PH en Venta en Lomas de Zamora

direccion Las Heras 666 Lomas De Zamora, Lomas De Zamora
direccion Ver en mapa
Venta
USD 73.000
Sin expensas
casas PH
3 Ambientes
2 dormitorios
1 baño
50 años de Antigüedad
Habitada
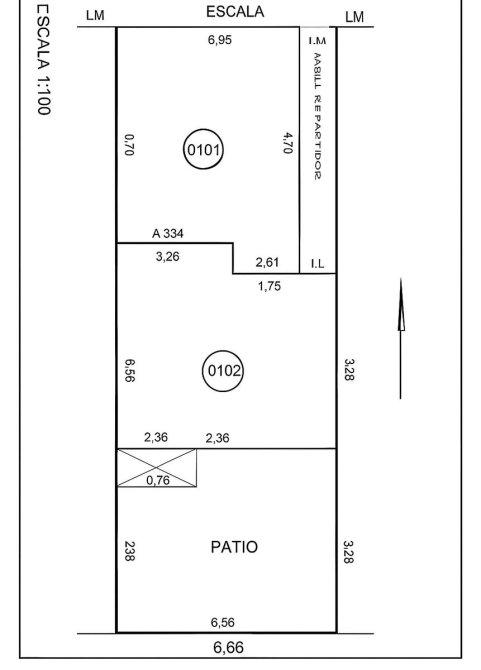
Superficie total 75m2
Superficie cubierta 70m2
2 pisos
Disposición Frente

venta Ph 3 ambientes en Lomas de Zamora con terraza

Venta PH 3 ambientes en Lomas de Zamora con terraza
Ambientes
Cocina comedor
Dos dormitorios
Baño
Lavadero
Terraza
Ingreso por entrada independiente a cocina comedor con mesada, muebles y cocina. Dos dormitorios, baño con ducha. Acceso a planta alta por escalera caracol a lavadero con terraza propia. 
Con renta vigente hasta el 30 de Junio del 2026.
Ubicada a metros de avenida Hipólito Yrigoyen.

Toda la información publicada (medidas, superficies, valores, impuestos, expensas, servicios, fotos y videos) es de carácter estimativo y no vinculante, pudiendo estar sujeta a modificaciones sin previo aviso, conforme lo establecido en el Art. 973 del Código Civil y Comercial de la Nación.
La operación queda supeditada al cumplimiento por parte del propietario de la normativa vigente.
Para conocer más propiedades, visite nuestra página web.
Diego Malizia Estudio Inmobiliario – Colegiado 3622 CPMLZ

Financiacion Financiación

  • Apto para crédito

Ubicación Ubicación

direccion Las Heras 666 Lomas De Zamora, Lomas De Zamora
  • codigo
    Código de la propiedad: DPH6956101
  • aviso
    Reportar aviso

¿Querés reportar algún problema con este aviso?

Seleccioná el motivo:

cerrar

Contactar a la inmobiliaria

Contactar a la inmobiliaria Cerrar modal

Diego Malizia Estudio Inmobiliario

venta Ph 3 ambientes en Lomas de Zamora con terraza

Propiedad