660823 | Duplex 3 amb. y chalet 4 amb -... | BuscadorProp
🔍

¡Buscamos por vos! ¡Tu búsqueda a todas las inmobiliarias!

¡Quiero probarlo!

compartir Compartir:

  • facebook
  • whatsapp
  • envelope
  • link
Quitar la propiedad de favoritos Guardá tu propiedad favorita

Dúplex/Tríplex en Venta en Mar del Tuyú

direccion 4 N 6664, Mar Del Tuyú
direccion Ver en mapa
Venta
USD 45.000
casas Dúplex/Tríplex
3 Ambientes
2 dormitorios
2 baños
1 cochera
A estrenar
Estado Excelente
Superficie cubierta 63m2
Orientación Oeste
Zonificación residencial- centrico

Publicado hace 11 meses

Duplex 3 amb. y chalet 4 amb - 4 N°6664

A ESTRENAR - CONJUNTO DE 4 UNIDADES
ZONA CENTRICA- A 4 CUADRAS DEL MAR Y DEL CENTRO


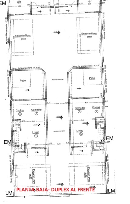
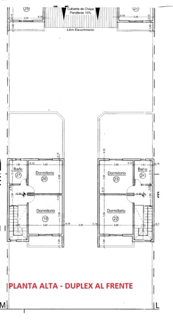
Al frente: 2 Duplex de 3 ambientes
-PB: cocina comedor- toilette
-PA: 2 dormitorios, uno con balcon, y baño
espacio de auto y patio con parrilla

Atrás: 2 chalet de 4 ambientes
-PB: cocina comedor, baño, y 2 dormitorios
-PA: domitorio con balcon, y baño
espacio de auto y patio con parrilla

Detalle de superficies
-duplex: sup cub 63 m2- sup desc: 19 m2
-chalet: sup cub  65 m2- sup desc: 26 m2

cloacas, gas envasado

PLAZO DE ENTREGA:
Frente: 4 MESES
Fondo: 9 MESES.

Las unidades se entregan totalemte teminadas, pintadas, con mesada, bajomesada, termotanque electrico  y bomba
Ubicado a 4 cuadras del ar, a 2 de una plaza, y a 4 de zona comercial
Muchas vecinos permanentes

Podria tomar vehiculo o lote en parte de pago.
Posibilidad de entrega de un 50% y el  otro 50% en cuotas a la entrega de la unidad.
 




 

Comodidades Comodidades

  • parrilla

    Con parrilla

  • patio

    Con patio

  • balcon

    Con balcón

  • cerca-mar

    Cerca del mar

Ubicación Ubicación

direccion 4 N 6664, Mar Del Tuyú
  • aviso
    Reportar aviso

¿Querés reportar algún problema con este aviso?

Seleccioná el motivo:

cerrar

Contactar a la inmobiliaria

Contactar a la inmobiliaria Cerrar modal

Anahi Molinari

Duplex 3 amb. y chalet 4 amb - 4 N°6664

Propiedad