Casa en Venta de 3 Dormitorios 2 baños co... | BuscadorProp
🔍

¡Buscamos por vos! ¡Tu búsqueda a todas las inmobiliarias!

¡Quiero probarlo!

compartir Compartir:

  • facebook
  • whatsapp
  • envelope
  • link
Quitar la propiedad de favoritos Guardá tu propiedad favorita

Casa en Venta en Córdoba

direccion Miradores De Manantiales I, Córdoba
direccion Ver en mapa
Venta
USD 330.000
$ 180.000 de expensas
casas Casas
10 Ambientes
3 dormitorios
1 toilette
2 baños
2 cocheras
Superficie total 210m2
Superficie cubierta 180m2
2 pisos
Orientación Sur

Casa en Venta de 3 Dormitorios 2 baños con 2 cocheras

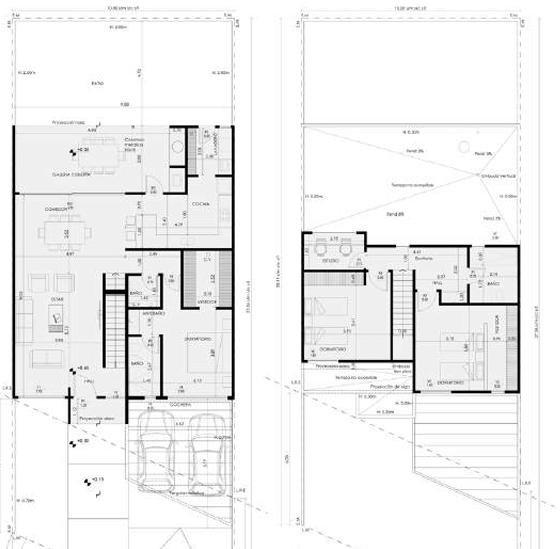
HDH Propiedades presenta a la venta excelente Casa de 210m2 ubicado en Miradores de Manantiales I, ubicado en la zona sur de la Ciudad de Córdoba. Manantiales posee un entorno tranquilo y espacios verdes comunes con seguridad constante.
SUS CARACTERÍSTICAS:
En Planta Baja:

- 1 Dormitorio con baño en suit y vestidor
- Living Amplio
- Comedor Amplio
- Cocina Comedor Integrada con barra desayunadora
- 1 Baño- Toillette
- Lavadero

- Patio
- Galería con Asador
- Cochera con Pérgola para 2 Vehiculos

En Planta Alta:
- 2 Dormitorio con Placard
- 1 Baño Completo

- Escritorio

Instalaciones:
-Conexión para Calefacción Central con Caldera y Radiadores
-Mamparas de Vidrio en Duchas
-Pisos Cerámicos 60x120
-Preinstalación para Aire Acondicionado
-Aberturas DVH
-mampara en baño
-Parquización 

Sup. Terreno: 253 m2
Sup. Cubierta 180 m2

Antigüedad a estrenar

El barrio cuenta con:
-Parquización
-Seguridad 24 hs
-Calles Pavimentadas

Precio Julio 2025 (USD 330.000)
Precio Septiembre 2025 (USD 340.000)
Entrega dentro de los 60 días (Mes de Septiembre 2025)
Para conocer mas opciones visita nuestra pagina HDHPROPIEDADES

Comodidades Comodidades

  • patio

    Con patio

  • jardin

    Con jardin

  • wifi

    Wifi

Ubicación Ubicación

direccion Miradores De Manantiales I, Córdoba
  • codigo
    Código de la propiedad: HHO7084716
  • aviso
    Reportar aviso

¿Querés reportar algún problema con este aviso?

Seleccioná el motivo:

cerrar

Contactar a la inmobiliaria

Contactar a la inmobiliaria Cerrar modal

HDH Propiedades

Casa en Venta de 3 Dormitorios 2 baños con 2 cocheras

Propiedad