Venta departamento 1 dormitorio - centro R... | BuscadorProp
🔍

¡Buscamos por vos! ¡Tu búsqueda a todas las inmobiliarias!

¡Quiero probarlo!

compartir Compartir:

  • facebook
  • whatsapp
  • envelope
  • link
Quitar la propiedad de favoritos Guardá tu propiedad favorita

Departamento en Venta en Rosario

direccion Mendoza 1200. Entre Entre Rios Y Mitre, Rosario
direccion Ver en mapa
Venta
USD 95.000
casas Departamentos
2 Ambientes
1 dormitorio
1 baño
10 cocheras
Superficie total 37m2
Superficie cubierta 32m2
Disposición Frente
Orientación Sur

Venta departamento 1 dormitorio - centro Rosario

Venta de Departamento 1 DORMITORIO en Centro, Rosario




Oportunidad inversor de producto calidad Celenia... 

Unidades disponibles -  32m2  + 5,90m2 balcón total 37,90m2 - 1 dormitorio al frente

Piso 7º - 02 - usd95.000

Piso 8º - 02 - usd96.000

Piso 9º - 02 - usd97.000

Imagenes referenciales de similar proyecto en ejecución...

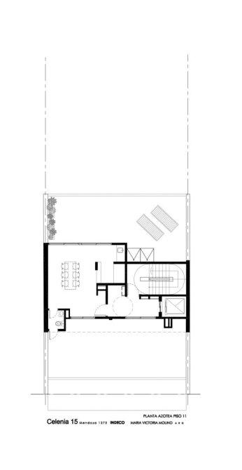
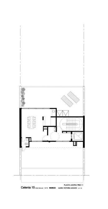
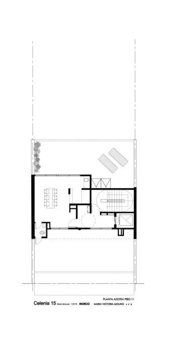
CELENIA 15 - Mendoza 1270 - Centro Rosario

PB y dos torres de 10 y 8 pisos. Local en PB y cocheras en PB y SS.

Torre 1: 3 unidades 1 dormitorio y una unidad Mono por planta

Torre 2: 3 unidades monoambientes.

Todas las unidades cuentan con placar e interiores completos.-

Amenities en terrazas con deck y quincho con parrilla.

Sector solarium y duchas.

Protección total con cámaras de seguridad y alarma.




XINTEL (UNI-UNI-71)

Ubicación Ubicación

direccion Mendoza 1200. Entre Entre Rios Y Mitre, Rosario
  • aviso
    Reportar aviso

¿Querés reportar algún problema con este aviso?

Seleccioná el motivo:

cerrar

Contactar a la inmobiliaria

Contactar a la inmobiliaria Cerrar modal

Urbania Negocios Inmobiliarios

Venta departamento 1 dormitorio - centro Rosario

Propiedad