Oficina en venta impecable estado en Micro... | BuscadorProp
🔍

¡Buscamos por vos! ¡Tu búsqueda a todas las inmobiliarias!

¡Quiero probarlo!

compartir Compartir:

  • facebook
  • whatsapp
  • envelope
  • link
Quitar la propiedad de favoritos Guardá tu propiedad favorita

Oficina en Venta en San Nicolás

direccion Tucumán Al 600, San Nicolás
direccion Ver en mapa
Venta
USD 170.000
$ 1 de expensas
casas Oficinas
5 Ambientes
2 baños
22 años de Antigüedad
Superficie total 237m2
Superficie cubierta 237m2
Disposición Frente

Oficina en venta impecable estado en Microcentro. Luminosa, espaciosa. Excelente ubicación.

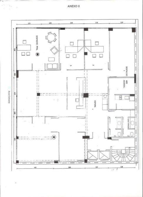
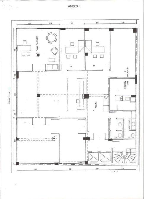
Se trata de una gran oficina en una sola planta, ubicada en el Barrio San Nicolás en pleno Microcentro de Capital.
La oficina consta de: 
- 4 despachos 
- Sala de espera y sala para auditorios. 
- Dos baños (dama y caballero)
- Cocina con espacio para break.

Atributos: 
- Es una planta libre de 238 m2, por lo cual se puede modificar según las necesidades de la empresa. 
- Impecable estado
- Muy luminosa
- Muy espaciosa. 
- Impecable estado 
- Gran potencialidad 
- Excelente ubicación 
Ven a visitarla y escuchamos tu propuesta !!!

Luca Videla Montalbetti CUCICBA 8432

En cumplimiento de la leyes provinciales vigentes que regulan el corretaje inmobiliario, Ley Nacional 25.028, Ley 22.802 de Lealtad Comercial, Ley 24.240 de Defensa al Consumidor, las normas del Código Civil y Comercial de la Nación y Constitucionales, los agentes/gestores NO ejercen el corretaje inmobiliario. Todas las operaciones inmobiliarias son objeto de intermediación y conclusión por parte de los martilleros y corredores colegiados.

Comodidades Comodidades

  • wifi

    Wifi

  • aireacondicionado

    Aire acondicionado

  • calefaccion

    Calefacción

Ubicación Ubicación

direccion Tucumán Al 600, San Nicolás
  • codigo
    Código de la propiedad: IOF5780496
  • aviso
    Reportar aviso

¿Querés reportar algún problema con este aviso?

Seleccioná el motivo:

cerrar

Contactar a la inmobiliaria

Contactar a la inmobiliaria Cerrar modal

Inmobrokers

Oficina en venta impecable estado en Microcentro. Luminosa, espaciosa. Excelente ubicación.

Propiedad