Departamento en venta de 3 ambientes CONT... | BuscadorProp
🔍

¡Buscamos por vos! ¡Tu búsqueda a todas las inmobiliarias!

¡Quiero probarlo!

compartir Compartir:

  • facebook
  • whatsapp
  • envelope
  • link
Quitar la propiedad de favoritos Guardá tu propiedad favorita

Departamento en Venta en Wilde

direccion Bahia Blanca Al 200, Wilde
direccion Ver en mapa
Venta
USD 105.000
Sin expensas
casas Departamentos
3 Ambientes
2 dormitorios
1 baño
Superficie cubierta 58m2

Departamento en venta de 3 ambientes CONTADO - Wilde

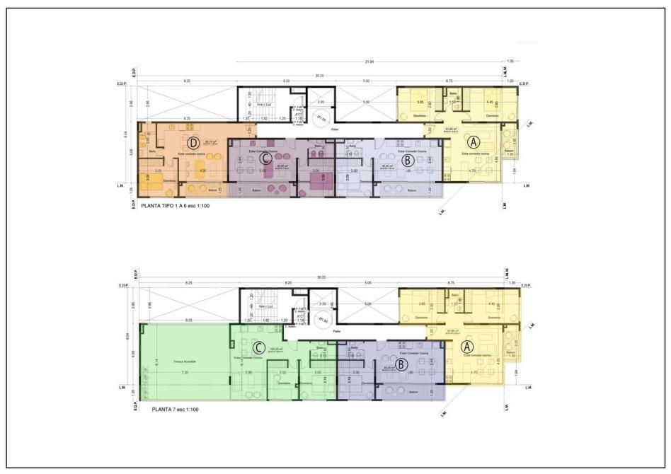
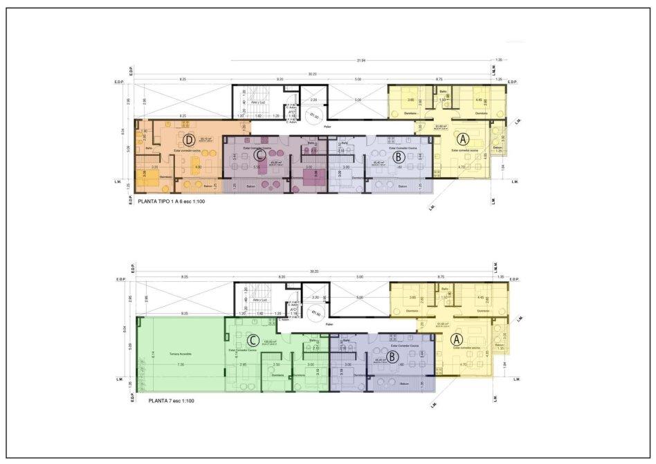
Departamento de tres ambientes con balcon a la venta en el 1º al 6º piso. Letra A. 
EL LUGAR

El edificio se encuentra emplazado en una zona residencial ubicado en Wilde a 200mts de Av. Mitre y a 300mts del centro comercial de dicha ciudad.

EL EDIFICIO

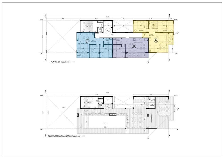
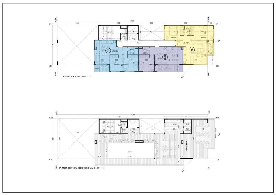
La estrategia en relacion a dicho terreno es plantear un edificio contemporáneo, tomando la situación de esquina como fortaleza para generar unidades luminosas con visuales a la ciudad. Dejando la planta baja para el uso de estacionamiento y acceso; para luego llevarnos a un piso de uso común con una terraza equipada con pileta, quincho, baño y parrilla como remate del edificio, poniendonos en una posicion privilegiada con vista al rio.

UNIDADES

En planta baja se situaran nueve cocheras independientes para el uso residencial. En los pisos del 1ro al 6to se proyectan tres unidades de dos ambientes con balcon privado y una de tres ambientes tomando la situacion de esquina. Por otro lado las plantas del 7mo al 9no se desarrollaron dos unidades de tres y una de dos ambientes.

Ubicación Ubicación

direccion Bahia Blanca Al 200, Wilde
  • codigo
    Código de la propiedad: VAP6206805
  • aviso
    Reportar aviso

¿Querés reportar algún problema con este aviso?

Seleccioná el motivo:

cerrar

Contactar a la inmobiliaria

Contactar a la inmobiliaria Cerrar modal

Valeria Gonzalez Propiedades

Departamento en venta de 3 ambientes CONTADO - Wilde

Propiedad