674337 | Venta/Financiación Departamento... | BuscadorProp
🔍

¡Buscamos por vos! ¡Tu búsqueda a todas las inmobiliarias!

¡Quiero probarlo!

compartir Compartir:

  • facebook
  • whatsapp
  • envelope
  • link
Quitar la propiedad de favoritos Guardá tu propiedad favorita

Departamento en Venta en Rosario

direccion Avenida Francia Al 1100, Rosario
direccion Ver en mapa
Venta
USD 145.000
Sin expensas
casas Departamentos
3 Ambientes
2 dormitorios
1 toilette
1 baño
Superficie total 80m2
Superficie cubierta 65m2
1 piso
Disposición Frente
Orientación Oeste

Venta/Financiación Departamento Semipiso Dos Dormitorios Balcon Amenities. Lourdes

Venta/Financiacion Departamento Dos Dormitorios Balcón Corrido A Estrenar. Lourdes

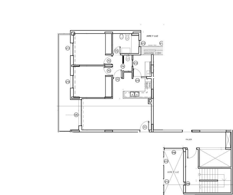
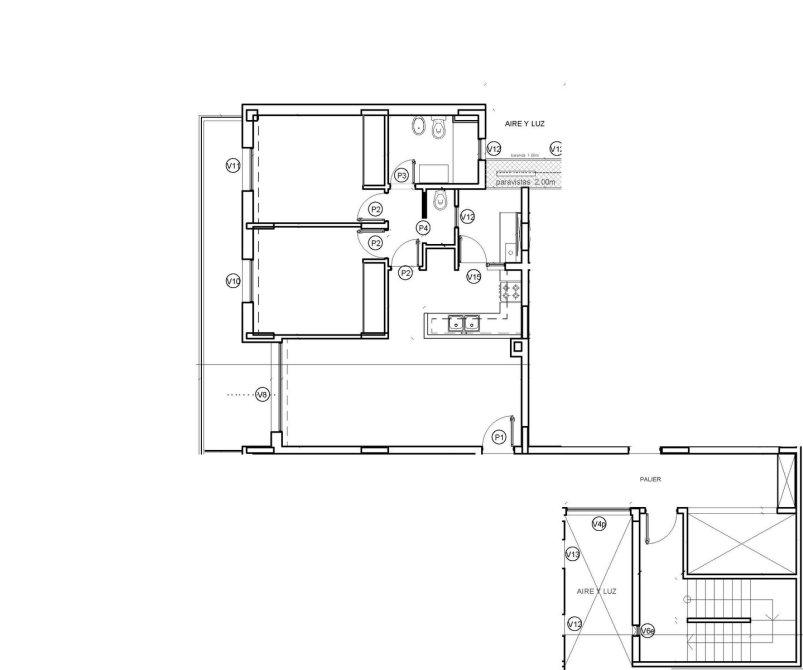
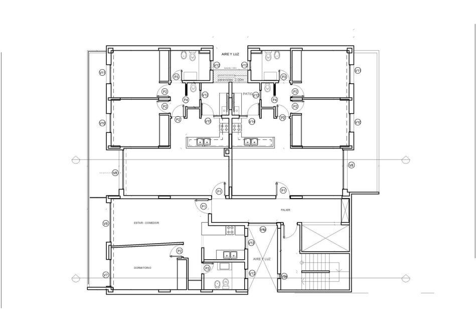
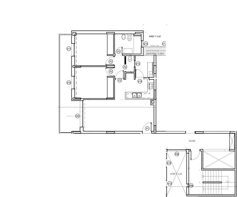
Superficie cubierta: 65,03m2
Superficie balcón: 15,37m2
Superficie total: 80,40m2

Cochera: disponible en subsuelo en U$S 18.000

Descripción

Ingreso por puerta de seguridad a un amplio living comedor con salida al patio con orientación este, cuenta con cocina semiintegrada en L separada por una amplia barra desayunadora, ventilación natural al norte y puerta de acceso al balcón interno para lavado y tendido de ropa. Volviendo hacia el living comedor se accede al íntimo donde encontramos los dos dormitorios con placard empotrado y amplios ventanales con salida a balcón corrido; a la derecha un toilette, y hacia el final del recorrido se ubica el baño completo con bañera, vanitory flotante, ambos con ventilación natural a un pulmón del edificio.

Cuenta con aberturas DVH 4+9+4, puerta de ingreso de seguridad de 3 anclajes, pisos flotantes de alta resistencia en los dormitorios. Pisos de porcelanato en cocina, comedor, living y baños. Bacha de acero inoxidable Johnson, griferias FV, sanitarios Ferrum, muebles de melamina Super glossy de 18mm con perfil de aluminio anodizado en cocina, y placas texturada en puertas de placard. Todos los ambientes cuentan con preinstalación de aire acondicionado, y preinstalación de radiadores por caldera.

Ubicación

En una zona estratégica de la ciudad de Rosario, sobre Avenida Francia 1169, el edificio NEHUEN ofrece una construcción de calidad garantizada. Una moderna torre de 11 pisos que cuenta con departamentos de 1, 2 y 3 dormitorios, 23 cocheras en planta baja y subsuelo. Además una sofisticada terraza verde con solarium, duchas y asadores.

Características

Todos los departamentos del edificio se destacan por su amplitud, luminosidad, ventilación natural, calidad constructiva y finos detalles de terminación.

Seguridad y confort son otros dos puntos importantes que resaltan, así como la planificación de instalaciones a futuro en materia de tecnología y domótica.

Amenities

-Terraza

-Parrillero

-Quincho semi cubierto

-Pre instalación de domótica

-Bauleras (opcionales)

Financiación personalizada

Entrega inmediata

Comodidades Comodidades

  • parrilla

    Con parrilla

  • mascota

    Acepta mascotas

  • wifi

    Wifi

  • balcon

    Con balcón

  • calefaccion

    Calefacción

  • solarium

    Solarium

  • ascensor

    Ascensor

Ver todaschevron-down
Ver menoschevron-up

Ubicación Ubicación

direccion Avenida Francia Al 1100, Rosario
  • codigo
    Código de la propiedad: EBU55017 AP5937484
  • aviso
    Reportar aviso

¿Querés reportar algún problema con este aviso?

Seleccioná el motivo:

cerrar

Contactar a la inmobiliaria

Contactar a la inmobiliaria Cerrar modal

Eigen Propiedades

Venta/Financiación Departamento Semipiso Dos Dormitorios Balcon Amenities. Lourdes

Propiedad