Venta Departamento Semipiso Dos Dormitorio... | BuscadorProp
🔍

¡Buscamos por vos! ¡Tu búsqueda a todas las inmobiliarias!

¡Quiero probarlo!

compartir Compartir:

  • facebook
  • whatsapp
  • envelope
  • link
Quitar la propiedad de favoritos Guardá tu propiedad favorita

Departamento en Venta en Rosario

direccion Ituzaingo Al 1800, Rosario
direccion Ver en mapa
Venta
USD 222.200
Sin expensas
casas Departamentos
3 Ambientes
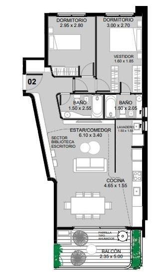
2 dormitorios
1 baño
1 cochera
Superficie total 115m2
Superficie cubierta 77m2
1 piso
Disposición Frente
Orientación Sur

Venta Departamento Semipiso Dos Dormitorios Categoria Cochera Amenities. Abasto

Venta Departamento Dos Dormitorios con Cochera Cubierta en Subsuelo. Barrio Abasto

Ubicado estratégicamente en el barrio Abasto, entre Dorrego e Italia, a pocos metros del Parque Independencia y del Club Gimnasia y Esgrima, se levanta este innovador edificio residencial que redefine el concepto de vivienda de lujo en Rosario.

Destacándose por sus unidades concebidas como auténticas residencias en altura, el edificio garantiza un estilo de vida exclusivo con todas las facilidades al alcance de la mano. Desde amplias unidades de un dormitorio hasta lujosos departamentos de cuatro dormitorios, cada residencia ha sido diseñada para satisfacer los más exigentes estándares de calidad.

Se ofrece una opción única de una unidad dúplex con terraza exclusiva, brindando un espacio más privado para aquellos que lo deseen. Además, las unidades de cuatro dormitorios también cuentan con terraza exclusiva, añadiendo un toque adicional de exclusividad al proyecto. Las unidades de tres dormitorios disfrutarán de balcones aterrazados equipados con piscina y parrillero, ofreciendo un espacio para el entretenimiento y el relax al aire libre. Este proyecto representa una oportunidad única para aquellos que buscan un estilo de vida exclusivo en Rosario.

Amplia gama de amenities que incluyen piscinas, quincho y gimnasio, el edificio asegura el máximo confort y satisfacción para sus residentes.

*Consultar precio con financiación.

Etapa de pre venta.

Comodidades Comodidades

  • pileta

    Con pileta

  • parrilla

    Con parrilla

  • patio

    Con patio

  • mascota

    Acepta mascotas

  • wifi

    Wifi

  • balcon

    Con balcón

  • calefaccion

    Calefacción

  • solarium

    Solarium

  • ascensor

    Ascensor

Ver todaschevron-down
Ver menoschevron-up

Ubicación Ubicación

direccion Ituzaingo Al 1800, Rosario
  • codigo
    Código de la propiedad: EAP7129924
  • aviso
    Reportar aviso

¿Querés reportar algún problema con este aviso?

Seleccioná el motivo:

cerrar

Contactar a la inmobiliaria

Contactar a la inmobiliaria Cerrar modal

Eigen Propiedades

Venta Departamento Semipiso Dos Dormitorios Categoria Cochera Amenities. Abasto

Propiedad