674731 | Venta Lote Apto Desarrollo PB 4 P... | BuscadorProp
🔍

¡Buscamos por vos! ¡Tu búsqueda a todas las inmobiliarias!

¡Quiero probarlo!

compartir Compartir:

  • facebook
  • whatsapp
  • envelope
  • link
Quitar la propiedad de favoritos Guardá tu propiedad favorita

Lote / Terreno en Venta en Rosario

direccion Pichincha 77, Rosario
direccion Ver en mapa
Venta
USD 440.000
Sin expensas
casas Lotes / Terrenos
Superficie total 453m2
Disposición Frente
Orientación Oeste

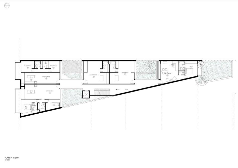
Venta Lote Apto Desarrollo PB 4 Pisos y Subsuelo Pichincha

Venta/Financiación Lote Apto Desarrollo PB + 4 Pisos Con Proyecto. Pichincha

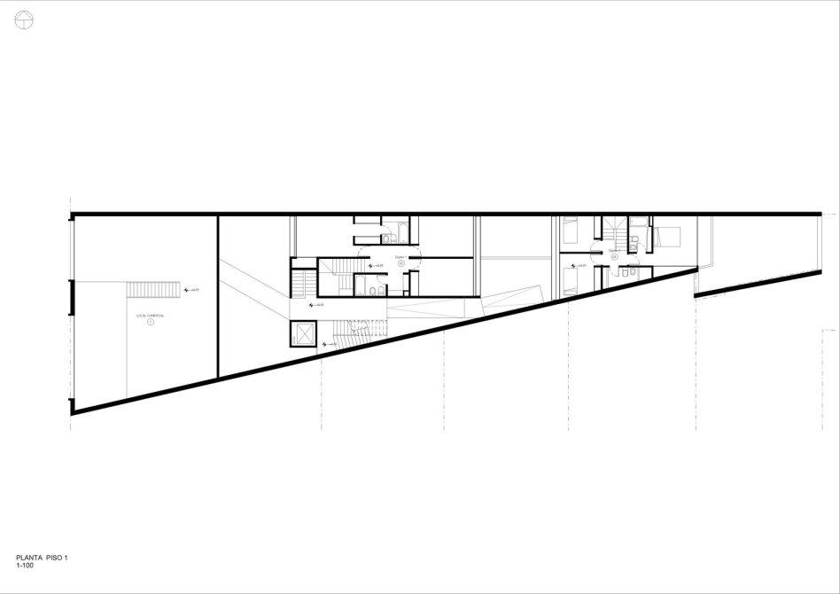
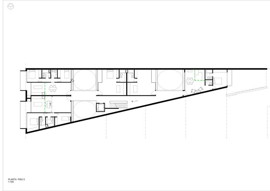
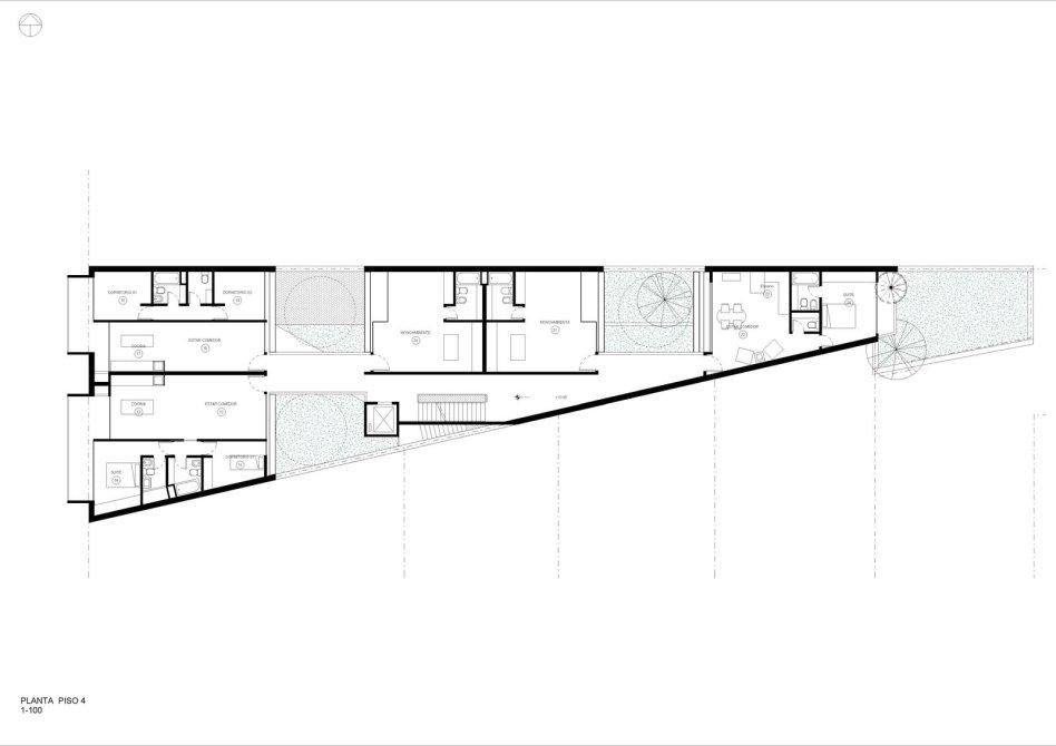
Casa ubicada sobre calle Pichincha (continuación de Ricchieri) a pocos metros de la intersección con Jujuy.

Cuenta con frente de 14,90 metros de frente al oeste, 53,90 metros de largo en su medianera norte, 45,37 metros en su medinera sur en linea perpendicular, un fondo de 3,88 metros en su medianera este, encerrando 416,23 metros cuadrados
Según urbanistico el FOS es de 0,70 y de una altura máxima de 13 metros.
Pueden construirse 1457m2 incluido sub suelo de cocheras

Financiacion Financiación

  • Apto para crédito

Ubicación Ubicación

direccion Pichincha 77, Rosario
  • codigo
    Código de la propiedad: EHO6204650
  • aviso
    Reportar aviso

¿Querés reportar algún problema con este aviso?

Seleccioná el motivo:

cerrar

Contactar a la inmobiliaria

Contactar a la inmobiliaria Cerrar modal

Eigen Propiedades

Venta Lote Apto Desarrollo PB 4 Pisos y Subsuelo Pichincha

Propiedad