Venta/Permuta Departamento Un Dormitorio B... | BuscadorProp
🔍

¡Buscamos por vos! ¡Tu búsqueda a todas las inmobiliarias!

¡Quiero probarlo!

compartir Compartir:

  • facebook
  • whatsapp
  • envelope
  • link
Quitar la propiedad de favoritos Guardá tu propiedad favorita

Departamento en Venta en Rosario

direccion Santa Fe 3280, Rosario
direccion Ver en mapa
Venta
USD 55.000
$ 45.000 de expensas
casas Departamentos
2 Ambientes
1 dormitorio
1 baño
16 años de Antigüedad
Habitada
Superficie total 38m2
Superficie cubierta 32m2
3 pisos
Disposición Frente
Orientación Sur

Venta/Permuta Departamento Un Dormitorio Balcon. Zona Facultades

Venta/Permuta Departamento Un Dormitorio Balcón Al Frente - Luis Agote, Rosario.

Descripción
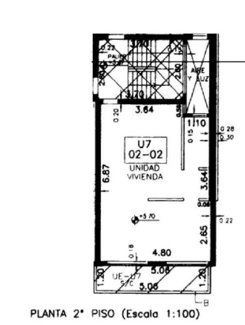
Se ingresa a un cómodo living comedor con cocina integrada y ventilación natural hacia la calle. Desde el living comedor se accede hacia la izquierda al baño completo con bañera, antebaño con placard y hacia la derecha al dormitorio.
Tanto Desde el living como desde el dormitorio se puede acceder al balcón corrido a través de ventanales de aluminio blanco, el mismo está cerrado con rejas en su totalidad.
Cocina con bajo mesada y alacenas de melamina 18mm simil madera, mesada de mármol gris mara, cocina de 4 hornallas con horno, calefón a gas y pisos cerámicos.

Observaciones
Es un edificio de 3 pisos, con 3 unidades por piso, y terraza de uso común.

Ubicación
Se ubica sobre calle Santa Fe casi Veramujica a 100 metros de la Facultad de Ciencias Médicas y Odontología, a 300 metros de la Facultas de Farmacia y Ciencias Bioquímicas, frente al parque del Patio de la madera.

NOTA: Las medidas informadas incluyen el 50% de los muros medianeros y el 100% de los muros interiores. No es permitida su utilización comercial. Las medidas y superficies expuestas son estimativas y a corroborar con sus respectivos planos y títulos. La publicación de este inmueble es a solo título informativo, la venta de la propiedad está supeditada a que el propietario cumplimente el trámite ante la AFIP para la obtención del Número de COTI correspondiente. La información no es contractual.

Financiacion Financiación

  • Apto para crédito

Comodidades Comodidades

  • mascota

    Acepta mascotas

  • wifi

    Wifi

  • balcon

    Con balcón

  • calefaccion

    Calefacción

Ubicación Ubicación

direccion Santa Fe 3280, Rosario
  • codigo
    Código de la propiedad: EAP5933470
  • aviso
    Reportar aviso

¿Querés reportar algún problema con este aviso?

Seleccioná el motivo:

cerrar

Contactar a la inmobiliaria

Contactar a la inmobiliaria Cerrar modal

Eigen Propiedades

Venta/Permuta Departamento Un Dormitorio Balcon. Zona Facultades

Propiedad