Dptos. a estrenar Fco. de las Carreras y M... | BuscadorProp
🔍

¡Buscamos por vos! ¡Tu búsqueda a todas las inmobiliarias!

¡Quiero probarlo!

compartir Compartir:

  • facebook
  • whatsapp
  • envelope
  • link
Quitar la propiedad de favoritos Guardá tu propiedad favorita

Departamento en Venta en Mar de Ajó

direccion Fco De Las Carreras Y Montevideo Mar De Ajo, Mar De Ajó
direccion Ver en mapa
Venta
USD 43.000
casas Departamentos
2 Ambientes
1 dormitorio
1 baño
Disposición Frente
Orientación Norte-este
Zonificación centro

Publicado hace 6 meses

Dptos. a estrenar Fco. de las Carreras y Montevideo Mar de Ajo Centro

INVERSION EN POZO!!

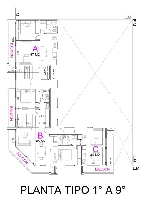
V144 - Edificio BELLAVISTA I de primera categoría, 27 departamentos distribuidos en 9 plantas, 9 cocheras y tres locales comerciales. Del primer al noveno piso encontramos por planta 3 unidades.
Con frente a la calle Montevideo se encolumnan departamentos de 45 m², de 2 ambientes compuestos de un amplio living, cocina-comedor, un dormitorio y un baño con antebaño y un balcon que lo rodea.
En la esquina se encolumnan departamentos 65 m² de 3 ambientes compuestos de un amplio living, cocina-comedor, dos dormitorios con placares y un baño con antebaño y un balcon hacia ambas calles.

Con frente a la calle Carreras se encolumnan departamentos de 47 m², de 2 ambientes compuestos de un amplio living, cocina-comedor, un dormitorio con placard y un baño con antebaño y un balcon en todo su ancho.
Muy buen diseño arquitectónico. Muy luminosos. Los departamentos se entregarán de la siguiente manera: mesada, bajo mesada, cocina eléctrica, termotanque eléctrico, sanitarios Capea, griferías FV, cañerias en termofusión, pisos de porcelanato, aberturas Modena, Revestimientos en Revear.


«Memoria descriptiva de obra Locales comerciales y Vivienda multifamiliar - Esquina Montevideo y Carreras - Mar de Ajo - P do. de la costa»
Locales Comerciales:
1). - Fundaciones y Estructura resistente en Hormigón Armado: Excavación de cimientos. Armado de estructura de hierro según calculo. Bases de fundación, tronco, vigas encadenado, columnas y losas con Hormigón H21, según cálculo.
 2). - Mamposterías: ladrillo hueco 12x18x33 en exterior y ladrillo hueco 8x18x33 según planos.
3). - Contra pisos y carpeta: sistema tradicional.
4). - Revoques: a la cal tradicional.
5). - Pisos y Revestimientos: cerámico según corresponda.
6). - Carpintería de Aluminio:(cerramientos): Módena con vidrio de 4 mm
7). - Carpintería de Madera:(puertas p lacas): interiores en línea estándar.
8). - Instalaciones Sanitarias: cañería de agua fría/caliente en termo fusión con diámetros según cálculo. Inodoro capea/ferrum y grifería fv.
9). - Instalación desagüe cloacal: awaduc t, con sus respectivas ventilaciones y cámaras según planos.
10). - Instalación Eléctrica: cableado con dimensiones según calculo, con circuitos separados, con sus respetivos tableros seccionales.
11). - Pintura general: fijador y aplicación de látex anti hongo.
12). - Acabado exterior: aplicación de revestimiento plástico, según fachada. (tarquini)

Vivienda Multifamiliar:

1). - Fundaciones y Estructura resistente en Hormigón Armado: Excavación de cimientos. Armado de estructura de hierro según calculo. Bases de fundación, tronco, vigas encadenado, columnas y losas con Hormigón H21, según cálculo.
2). - Mamposterías: ladrillo hueco 18x18x33 en exterior y ladrillo hueco 8/12x18x33 según planos. 3). - Contra pisos y carpeta: sistema tradicional.
4). - Revoques: a la cal tradicional.
5). - Pisos y Revestimientos: cerámico y porcelanato según corresponda.
6). - Carpintería de Aluminio:(cerramientos): Módena blanco/negro con vidrio de 4 mm
7). - Carpintería de Madera:(puertas placas): interiores en línea estándar.
8) . - Instalaciones Sanitarias: cañería de agua fría/caliente en termo fusión con diámetros según cálculo. Inodoro, Bidet y Lavatorio capea/ferrum y grifería fv .
9). - Instalación desagüe cloacal: awaduct, con sus respectivas ventilaciones y cámaras según planos.
 10). - Instalación Eléctrica: cableado con dimensiones según calculo, con circuitos separados, con sus respetivos tableros seccionales.
11). - Amueblamientos: Bajo mesada en melanina 18 mm b lanco estándar. 12). - Artefactos: cocina y termo tanque eléctrico línea estándar.
12). - Mesada de Mármol
13). - Pintura general: terminación en Yeso aplicado, fijador y aplicación de látex anti hongo.
14). - Acabado exterior: aplicación de revestimiento plástico, según fachada. (tarquini)

VALORES:
COCHERAS: A PARTIR DE u$s 6.000.-
DEPARTAMENTOS: A PARTIR DE u$s 43.000.-
LOCALES: A PARTIR DE u$s 38.000.- 
FORMA DE PAGO:
30% AL BOLETO Y CUOTAS
ARMA TU PLAN !!

SE TOMAN PERMUTAS !!

FECHA DE ENTREGA DICIEMBRE 2027
 

Comodidades Comodidades

  • mascota

    Acepta mascotas

  • ascensor

    Ascensor

  • cerca-mar

    Cerca del mar

  • zona-centrica

    Zona céntrica

Ubicación Ubicación

direccion Fco De Las Carreras Y Montevideo Mar De Ajo, Mar De Ajó
  • aviso
    Reportar aviso

¿Querés reportar algún problema con este aviso?

Seleccioná el motivo:

cerrar

Contactar a la inmobiliaria

Contactar a la inmobiliaria Cerrar modal

Desimar Propiedades

Dptos. a estrenar Fco. de las Carreras y Montevideo Mar de Ajo Centro

Propiedad