676213 | Cocheras fijas en Caballito - Cab... | BuscadorProp
🔍

¡Buscamos por vos! ¡Tu búsqueda a todas las inmobiliarias!

¡Quiero probarlo!

compartir Compartir:

  • facebook
  • whatsapp
  • envelope
  • link
Quitar la propiedad de favoritos Guardá tu propiedad favorita

Cochera en Venta en Caballito

direccion Av. Avellaneda Al 300, Caballito
direccion Ver en mapa
Venta
USD 17.000
+ $ 40.000 expensas
casas Cocheras
1 baño
Superficie total 15m2
Superficie cubierta 15m2
3 pisos
Disposición Interno

Cocheras fijas en Caballito

Nuevo valor  Cocheras fijas en venta en Caballito
Invertí en una cochera con renta inmediata, bajo mantenimiento y alta demanda en una de las zonas más buscadas de CABA.
Ubicadas sobre Av. Avellaneda, entre Campichuelo y Dr. Eleodoro López, en pleno Caballito, a metros del Hospital Durand y rodeadas de avenidas clave: Av. Díaz Vélez, Av. Acoyte y Av. Rivadavia.
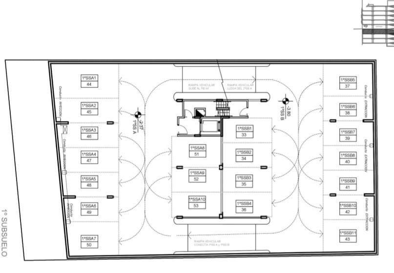
El edificio cuenta con 190 cocheras distribuidas en 3 subsuelos y 5 pisos: Cocheras amplias y de fácil acceso. Portón automático con control remoto. Seguridad 24 hs. y cámaras con monitoreo desde el celular. Ascensor. Encargado y baño para propietarios
Ideal para:
Inversores que buscan renta estable y resguardo de capital
Residentes de la zona que quieren olvidarse de buscar estacionamiento
Médicos y personal de salud del Hospital Durand, sanatorios y clínicas cercanas
Hoy, una cochera es más que un lugar para estacionar: es una inversión práctica, segura y con excelente proyección de valor.
Consultanos y conocé las opciones disponibles.

En cumplimiento a la ley 5115, se informa que el inmueble es accesible para personas con movilidad reducida o discapacidad física.



Corredor interviniente: Milagros Sarachaga CUCICBA 7799 Paolo Menghi CUCICBA 9171 CMCPDJLM 1005

La tasación, intermediación y la conclusión de las operaciones sobre esta propiedad son actividades exclusivas de este corredor matriculado, conforme las previsiones de la ley 20.266, la ley CABA 2340, la ley provincial 10.973 y sus modif. y las normas reglamentarias dictadas por los colegios departamentales.

Las medidas, superficies y expensas consignadas en la presente son aproximadas; y al solo efecto orientativo. Los datos definitivos son los que surgirán del título de la propiedad y de los comprobantes respaldatorios.

Comodidades Comodidades

  • ascensor

    Ascensor

Ubicación Ubicación

direccion Av. Avellaneda Al 300, Caballito
  • codigo
    Código de la propiedad: AD300
  • aviso
    Reportar aviso

¿Querés reportar algún problema con este aviso?

Seleccioná el motivo:

cerrar

Contactar a la inmobiliaria

Contactar a la inmobiliaria Cerrar modal

Zipcode

Cocheras fijas en Caballito

Propiedad