681299 | Departamento en venta 2 ambientes... | BuscadorProp
🔍

¡Buscamos por vos! ¡Tu búsqueda a todas las inmobiliarias!

¡Quiero probarlo!

compartir Compartir:

  • facebook
  • whatsapp
  • envelope
  • link
Quitar la propiedad de favoritos Guardá tu propiedad favorita

Departamento en Venta en Ituzaingó

direccion Mansilla 1116 9º Uf 903, Ituzaingó
direccion Ver en mapa
Venta
USD 165.045
Sin expensas
casas Departamentos
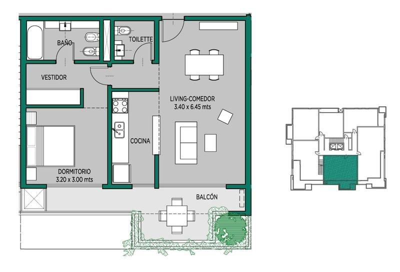
2 Ambientes
1 dormitorio
1 baño
Superficie total 74m2
Superficie cubierta 59m2
1 piso
Disposición Frente

Departamento en venta 2 ambientes en Ituzaingo con balcón. De categoría-

Boisé | 1116 es la continuidad de la constante búsqueda de incorporar en nuestros desarrollos la naturaleza llevando la misma en este caso de los espacios comunes a los privados de cada una de las unidades..

EXCELENTE UNIDAD DE DOS AMBIENTES -
Amplio living-comedor, pisos de porcellanato, con salida a amplio balcón. Cocina separada con muebles bajo mesada y alacena. Baño completo con bañera, grifería de primera calidad. Toilette. Dormitorio con vestidor, pisos de porcellanato.

-Ventanas y puertas ventanas: hojas y marcos de aluminio, línea Módena, Rotonda o similar, anodizadas color aluminio con DVH.
- ARTEFACTOS ELECTRICOS: Horno y anafe eléctricos marca Longvie o similar.
- Pre instalacion Aire Acondicionado.
- INSTALACION DE CALEFACCION: La calefacción será mediante radiadores y/o piso radiante según necesidad del ambiente.

Las descripciones, medidas, superficies y proporciones proporcionadas en esta ficha son aproximadas y se presentan únicamente a modo orientativo.
Las medidas exactas surgirán del plano o escritura de dominio correspondiente.

Es importante tener en cuenta que la información brindada puede estar sujeta a cambios y actualizaciones, y que los inmuebles mencionados pueden ser retirados de la oferta sin previo aviso. Y los valores no constituyen una oferta contractual. Todas las imágenes, renders y videos son ilustrativos y no contractuales.

Para mayor información, contacta a nuestro equipo profesional.
Estamos para acompañarte y ayudarte a tomar la mejor decisión.

Para obtener la información más precisa y actualizada sobre las propiedades disponibles, te recomendamos contactar a nuestro equipo de profesionales.

Ellos estarán encantados de brindarte detalles adicionales y responder a todas tus preguntas. Agradecemos tu comprensión y estamos comprometidos en brindarte un servicio transparente y confiable. Espinosa Negocios Inmobiliarios

Comodidades Comodidades

  • parrilla

    Con parrilla

  • wifi

    Wifi

  • balcon

    Con balcón

  • solarium

    Solarium

Ubicación Ubicación

direccion Mansilla 1116 9º Uf 903, Ituzaingó
  • codigo
    Código de la propiedad: VBU11230 AP1108097
  • aviso
    Reportar aviso

¿Querés reportar algún problema con este aviso?

Seleccioná el motivo:

cerrar

Contactar a la inmobiliaria

Contactar a la inmobiliaria Cerrar modal

Verónica Espinosa Negocios Inmobiliarios

Departamento en venta 2 ambientes en Ituzaingo con balcón. De categoría-

Propiedad