681462 | Galpón en Nordelta - Tigre - GBA... | BuscadorProp
🔍

¡Buscamos por vos! ¡Tu búsqueda a todas las inmobiliarias!

¡Quiero probarlo!

compartir Compartir:

  • facebook
  • whatsapp
  • envelope
  • link
Quitar la propiedad de favoritos Guardá tu propiedad favorita

Depósito / Galpón en Venta en Tigre

direccion Sebastian Elcano Al 1200, Tigre
direccion Ver en mapa
Venta
USD 600.000
casas Depósitos / Galpones
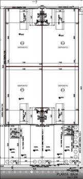
Superficie total 12100m2
Disposición Frente

Galpón en Nordelta

Ubicacion a 200 metros de la ruta 27, Av. Benavidez y 5 minutos de nordelta. Único predio disponible al lado de Nordelta.


12100 M2 de superficie total (2 naves)

Zona industrial.

Se realizaran 2 naves industriales

1 Nave de 2000 m2 donde se van a realizar 4 Galpones de 500 m2 todo con planos de subdivision. (y sus respectivas escrituras)

1 Nave de 6000 m2 con Galpones de 300m2 de 150m2 y de 100m2.

Zonificacion: Industrial 1 y 2 , Agua potable, energia , no hay gas.

Lote en forma de L .

¡Descubre las mejores oportunidades inmobiliarias siguiéndonos en Instagram!

Las descripciones, medidas, superficies y proporciones proporcionadas en esta ficha son aproximadas y se presentan únicamente a modo orientativo.

Es importante tener en cuenta que la información brindada puede estar sujeta a cambios y actualizaciones, y que los inmuebles mencionados pueden ser retirados de la oferta sin previo aviso.

Para obtener la información más precisa y actualizada sobre las propiedades disponibles, te recomendamos contactar a nuestro equipo de profesionales.

Ellos estarán encantados de brindarte detalles adicionales y responder a todas tus preguntas. Agradecemos tu comprensión y estamos comprometidos en brindarte un servicio

transparente y confiable. Espinosa Negocios Inmobiliarios

Ubicación Ubicación

direccion Sebastian Elcano Al 1200, Tigre
  • codigo
    Código de la propiedad: VGL6661497
  • aviso
    Reportar aviso

¿Querés reportar algún problema con este aviso?

Seleccioná el motivo:

cerrar

Contactar a la inmobiliaria

Contactar a la inmobiliaria Cerrar modal

Verónica Espinosa Negocios Inmobiliarios

Galpón en Nordelta

Propiedad