Departamento de dos ambientes en venta- Mo... | BuscadorProp
🔍

¡Buscamos por vos! ¡Tu búsqueda a todas las inmobiliarias!

¡Quiero probarlo!

compartir Compartir:

  • facebook
  • whatsapp
  • envelope
  • link
Quitar la propiedad de favoritos Guardá tu propiedad favorita

Departamento en Venta en Morón

direccion La Roche 200, Morón
direccion Ver en mapa
Venta
USD 75.000
casas Departamentos
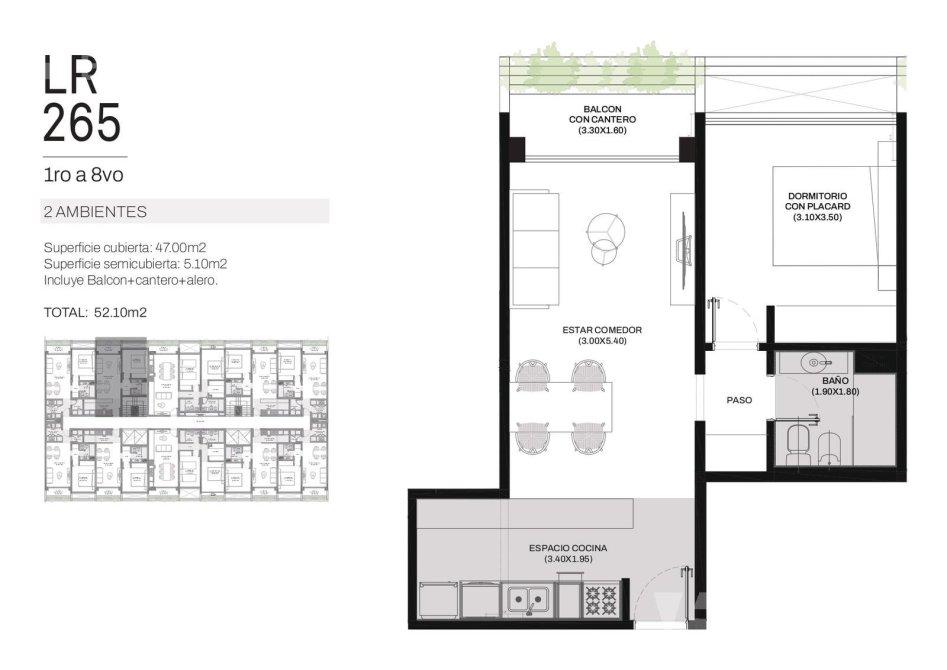
2 Ambientes
1 dormitorio
1 baño
Superficie total 51m2
Superficie cubierta 46m2
1 piso
Disposición Contrafrente

Departamento de dos ambientes en venta- Moron Sur

Nuevo hogar te espera en un edificio moderno, seguro y diseñado para disfrutar al máximo cada espacio.

UNIDADES DE DOS AMBIENTES EN VENTA. 
Ingreso por cocina semi integrada, living-comedor con salida a un amplio balcón, dormitorio con placard y baño completo con bañera.

Cada unidad se entrega con:
*Pisos de porcelanato
* Muebles de cocina bajo mesada
 *Frente e interior de placard
*Vidrios de seguridad
*Revestimientos cerámicos
 *Instalación para lavarropas

Máxima seguridad y confort:
*Control de accesos digitalizados
*Cámaras perimetrales y en cada acceso
*Portero eléctrico con visor
*Cerco eléctrico
*Iluminación LED en espacios comunes

Detalles que suman calidad de vida:
*Sistema de agua caliente
*Preinstalación de aire acondicionado en dormitorios y living
*Cocheras opcionales
¡Descubre las mejores oportunidades inmobiliarias siguiéndonos en Instagram!

Las descripciones, medidas, superficies y proporciones proporcionadas en esta ficha son aproximadas y se presentan únicamente a modo orientativo.

Es importante tener en cuenta que la información brindada puede estar sujeta a cambios y actualizaciones, y que los inmuebles mencionados pueden ser retirados de la oferta sin previo aviso.

Para obtener la información más precisa y actualizada sobre las propiedades disponibles, te recomendamos contactar a nuestro equipo de profesionales.

Ellos estarán encantados de brindarte detalles adicionales y responder a todas tus preguntas. Agradecemos tu comprensión y estamos comprometidos en brindarte un servicio

transparente y confiable. Espinosa Negocios Inmobiliarios

Ubicación Ubicación

direccion La Roche 200, Morón
  • codigo
    Código de la propiedad: VBU66115 AP7281056
  • aviso
    Reportar aviso

¿Querés reportar algún problema con este aviso?

Seleccioná el motivo:

cerrar

Contactar a la inmobiliaria

Contactar a la inmobiliaria Cerrar modal

Verónica Espinosa Negocios Inmobiliarios

Departamento de dos ambientes en venta- Moron Sur

Propiedad