Departamento en venta, dos ambientes, Moro... | BuscadorProp
🔍

¡Buscamos por vos! ¡Tu búsqueda a todas las inmobiliarias!

¡Quiero probarlo!

compartir Compartir:

  • facebook
  • whatsapp
  • envelope
  • link
Quitar la propiedad de favoritos Guardá tu propiedad favorita

Departamento en Venta en Morón

direccion Azul 1000 Pb, Morón
direccion Ver en mapa
Venta
USD 60.000
casas Departamentos
2 Ambientes
1 dormitorio
1 baño
1 cochera
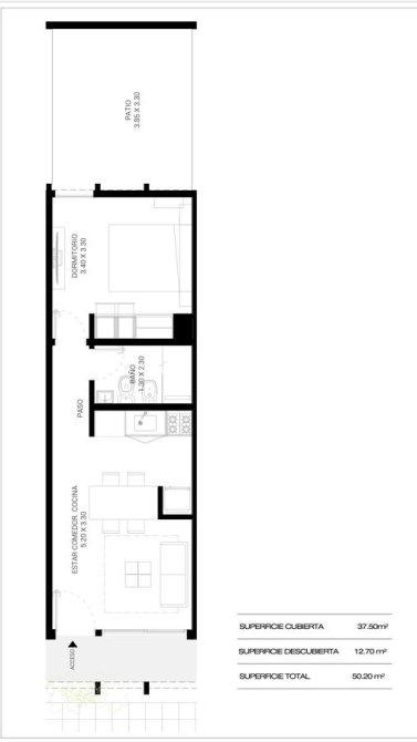
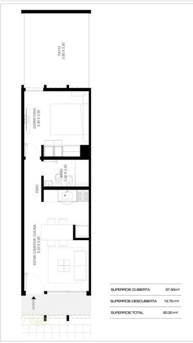
Superficie total 50m2
Superficie cubierta 37m2
1 piso
Disposición Interno

Departamento en venta, dos ambientes, Moron. Con patio propio.

EXCELENTE EMPRENDIMIENTO EN CONSTRUCCIÓN, UNIDAD DE DOS AMBIENTES CON PATIO Y COCHERA

Se ingresa por cocina-comedor; cocina con muebles bajo mesada y a alacena, mesada de granito gris mara (o similar) con bacha de acero inoxidable y grifería monocomando.Salida al patio.
Dormitorio con frente de placard integral.  
Baño completo con artefactos sanitarios (inodoro, deposito exterior, bide y vanitory).
Cochera descubierta. 

Adicionales:

o Excelente calidad constructiva.
o Pre instalación para aire acondicionado.
o Portón vehicular de uso general automatizado.
o Amoblamientos bajo mesada y alacena.
o Ventilacion cruzada






¡Descubre las mejores oportunidades inmobiliarias siguiéndonos en Instagram!

Las descripciones, medidas, superficies y proporciones proporcionadas en esta ficha son aproximadas y se presentan únicamente a modo orientativo.

Es importante tener en cuenta que la información brindada puede estar sujeta a cambios y actualizaciones, y que los inmuebles mencionados pueden ser retirados de la oferta sin previo aviso.

Para obtener la información más precisa y actualizada sobre las propiedades disponibles, te recomendamos contactar a nuestro equipo de profesionales.

Ellos estarán encantados de brindarte detalles adicionales y responder a todas tus preguntas. Agradecemos tu comprensión y estamos comprometidos en brindarte un servicio

transparente y confiable. Espinosa Negocios Inmobiliarios

Comodidades Comodidades

  • patio

    Con patio

Ubicación Ubicación

direccion Azul 1000 Pb, Morón
  • codigo
    Código de la propiedad: VBU44520 AP7368008
  • aviso
    Reportar aviso

¿Querés reportar algún problema con este aviso?

Seleccioná el motivo:

cerrar

Contactar a la inmobiliaria

Contactar a la inmobiliaria Cerrar modal

Verónica Espinosa Negocios Inmobiliarios

Departamento en venta, dos ambientes, Moron. Con patio propio.

Propiedad