MONOAMBIENTE EN CONSTRUCCION EN VENTA! 9°B | BuscadorProp
🔍

¡Buscamos por vos! ¡Tu búsqueda a todas las inmobiliarias!

¡Quiero probarlo!

compartir Compartir:

  • facebook
  • whatsapp
  • envelope
  • link
Quitar la propiedad de favoritos Guardá tu propiedad favorita

Departamento en Venta en Banfield

direccion Cochabamba 200, Banfield
direccion Ver en mapa
Venta
USD 69.157
casas Departamentos
2 Ambientes
1 dormitorio
1 baño
Superficie total 35m2
Superficie cubierta 35m2
Disposición Contrafrente

MONOAMBIENTE EN CONSTRUCCION EN VENTA! 9°B

¡EXCELENTE OPORTUNIDAD DE INVERSIÓN EN BANFIELD!

Monoambiente en construcción ubicada estratégicamente a media cuadra de Av. Alsina y a solo dos cuadras de la estación de tren de Banfield. Ideal para profesionales o emprendedores que buscan un espacio moderno en una ubicación privilegiada.

Características destacadas:
Unidad: Piso 9°, letra "B".
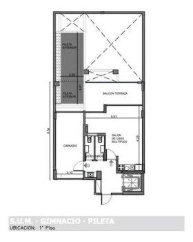
Edificio con amenities premium:
Salón de usos múltiples (SUM).
Piscina.
Gimnasio.

Beneficios de financiación:
Anticipo del 40% del valor total.
Saldo en 12 cuotas mensuales a convenir.
¡No dejes pasar esta oportunidad! Para más información, no dudes en consultarnos.

Servicios: Electricidad, Pavimento, Cloacas, Gas, Teléfono, Agua Corriente

Otros Servicios: Balcón

Comodidades Comodidades

  • pileta

    Con pileta

Ubicación Ubicación

direccion Cochabamba 200, Banfield
  • codigo
    Código de la propiedad: 6292293::ZP-M-54994233
  • aviso
    Reportar aviso

¿Querés reportar algún problema con este aviso?

Seleccioná el motivo:

cerrar

Contactar a la inmobiliaria

Contactar a la inmobiliaria Cerrar modal

Silvia Barandiaran

MONOAMBIENTE EN CONSTRUCCION EN VENTA! 9°B

Propiedad