685108 | LOCAL AL POZO CON 4 COCHERAS Y DE... | BuscadorProp
🔍

¡Buscamos por vos! ¡Tu búsqueda a todas las inmobiliarias!

¡Quiero probarlo!

compartir Compartir:

  • facebook
  • whatsapp
  • envelope
  • link
Quitar la propiedad de favoritos Guardá tu propiedad favorita

Local en Venta en Banfield

direccion Avenida Alsina 750, Banfield
direccion Ver en mapa
Venta
USD 400.000
Sin expensas
casas Locales
2 baños
4 cocheras
Superficie total 166m2
Superficie cubierta 166m2

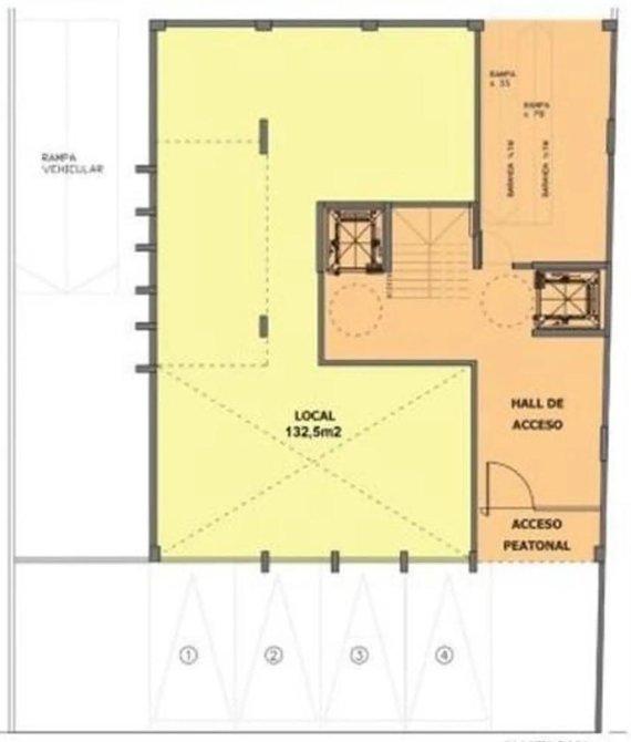
LOCAL AL POZO CON 4 COCHERAS Y DEPÓSITO

Local comercial en ALSINA 750 Banfield Centro - Planta Baja, 166 m²
Se presenta este local comercial de 166 m² ubicado en la planta baja del edificio ALSINA 750, en pleno corazón de Banfield, a solo dos cuadras de la estación y con acceso directo a la principal avenida.
El local contará con una excelente visibilidad y distribución, ideal para distintos rubros comerciales, y forma parte de un proyecto moderno con amenities de primer nivel, que incluyen SUM, gimnasio, piscina con deck y solárium, vestuarios y cocheras.
Financiación disponible: anticipo del 40% y saldo en hasta 30 cuotas mensuales.
Una oportunidad única para establecer tu negocio en un entorno estratégico, con alto potencial de valorización.

Servicios: Electricidad, Gas, Agua Corriente

Ubicación Ubicación

direccion Avenida Alsina 750, Banfield
  • codigo
    Código de la propiedad: 6420254::ZP-M-57624868
  • aviso
    Reportar aviso

¿Querés reportar algún problema con este aviso?

Seleccioná el motivo:

cerrar

Contactar a la inmobiliaria

Contactar a la inmobiliaria Cerrar modal

Silvia Barandiaran

LOCAL AL POZO CON 4 COCHERAS Y DEPÓSITO

Propiedad