685672 | VENTA Block Edificio Comercial Of... | BuscadorProp
🔍

¡Buscamos por vos! ¡Tu búsqueda a todas las inmobiliarias!

¡Quiero probarlo!

compartir Compartir:

  • facebook
  • whatsapp
  • envelope
  • link
Quitar la propiedad de favoritos Guardá tu propiedad favorita

Oficina en Venta en Vicente Lopez

direccion Avellaneda Al 800, Vicente Lopez
direccion Ver en mapa
Venta
USD 568.000
Sin expensas
casas Oficinas
9 Ambientes
6 baños
26 años de Antigüedad
Superficie total 689m2
Superficie cubierta 520m2
3 pisos
Disposición Frente
Orientación Este

VENTA Block Edificio Comercial Oficinas Empresa Pyme Patios Conectividad Florida Vicente López

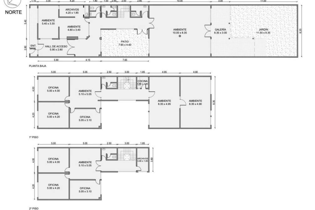
Block edificio comercial desarrollado en 3 plantas (planta baja y 2 niveles) sobre lote propio, excelente estado general y en Florida - Vicente Lopez a 900m. de Capital Federal. Estructura sólida de hormigón armado, instalaciones actualizadas y ocupación inmediata.

Zonificación R2 – Residencial Mixta, apta para uso comercial y administrativo, plenamente compatible con edificio de oficinas y con flexibilidad para uso corporativo futuro.

• La publicación incluye planos, tour virtual y video para que puedas recorrer la propiedad en detalle antes de visitarla.

El edificio cuenta con espacios amplios, divisiones flexibles y muy buena iluminación natural, con orientación este, norte, oeste y ventilaciones cruzadas.
Presenta notable integración de los patios, generando dos áreas exteriores privadas con vegetacion vertical (uno al contrafrente y otro como pulmón).

Dispone de kitchenettes en PB + 1ro. y baños en todos los pisos (PB, 1ro. 2do.) , 14 equipos de aire acondicionado tipo split frío/calor, y calefacción por estufas de tiro balanceado distribuidas en todos los pisos.

Presenta un estado edilicio impecable, con cableado estructural mediante bandejas portacables y tableros eléctricos seccionales actualizados con sistema/corriente trifásica y materiales de terminación estándar profesional, ideal para oficinas, estudios, coworking, empresas tecnológicas, pymes, colegio, instituto y centros de capacitación o uso mixto corporativo.

Óptima conectividad hacia CABA; a pasos de Av. Maipú, Av. San Martín y estación Florida del tren Mitre, con múltiples líneas de colectivos -MetroBus- y acceso rápido a General Paz, Panamericana, Lugones.

ZONIFICACION Y USOS-Zonificación R2 – Residencial Mixta
-Compatible con uso comercial y administrativo
-Apto oficinas corporativas y estudios profesionales
-Admite coworking, sedes administrativas y centros de capacitación
-Flexibilidad para uso mixto y reconversión futura
-Zona urbana consolidada, sin restricciones relevantes para el uso actual

-Disposición en 3 plantas (PB + 2 niveles)
-Doble patio con césped sintético (33,1 m² y 120 m²)
-Apto profesional
-Superficie cubierta: 520 m²
-Superficie semicubierta: 16 m²
-Superficie total: 689.10 m2. (cubierta, semi-cubierta y descubierta)
-Lote: 8,66 x 35,23 m (380.04m²)
-Baños: 6 (1 toilette + 5 baños completos)
-Orientación: Facha este, Contrafrente oeste, Patio: favorece iluminación Norte.
-Estado: excelente
-Antigüedad efectiva: 26 años
-Calefacción: estufas tiro balanceado
-Aire acondicionado: 14 splits frío/calor
-Servicios: luz ( sistema/corriente trifásica), agua, cloaca, gas natural, pavimento.

Ubicación: Nicolás Avellaneda 850, Florida, Vicente López.
Zona urbana consolidada con todos los servicios, entorno residencial de alta calidad urbana y gran accesibilidad.
A metros de la estación Florida del tren Mitre, Av. Maipú y Av. San Martín. Cercano a centros educativos y comerciales,

Algunas imágenes pueden incluir ambientación virtual generada con inteligencia artificial, con fines ilustrativos para visualizar el espacio. La propiedad se entrega sin mobiliario.

En cumplimiento a la ley 5115, se informa que el inmueble ES accesible para personas con movilidad reducida o discapacidad física en la Planta Baja del edificio.

• ¿Querés vender o alquilar tu propiedad?
• Si necesitás una tasación profesional o querés que trabajemos tu propiedad con este nivel de presentación, escribime y lo conversamos sin compromiso.
• Somos anunciantes Premier en Zonaprop, Mercado Libre Oro y Argenprop Adinco Premium. Trabajamos con fotografía profesional, video, recorrido virtual, planos y estrategia personalizada para lograr el mejor resultado.





Corredor interviniente: Milagros Sarachaga CUCICBA 7799 Paolo Menghi CUCICBA 9171 CMCPDJLM 1005

La tasación, intermediación y la conclusión de las operaciones sobre esta propiedad son actividades exclusivas de este corredor matriculado, conforme las previsiones de la ley 20.266, la ley CABA 2340, la ley provincial 10.973 y sus modif. y las normas reglamentarias dictadas por los colegios departamentales.

Las medidas, superficies y expensas consignadas en la presente son aproximadas; y al solo efecto orientativo. Los datos definitivos son los que surgirán del título de la propiedad y de los comprobantes respaldatorios.

Financiacion Financiación

  • Apto para crédito

Comodidades Comodidades

  • patio

    Con patio

  • jardin

    Con jardin

  • mascota

    Acepta mascotas

  • wifi

    Wifi

  • aireacondicionado

    Aire acondicionado

  • calefaccion

    Calefacción

Ubicación Ubicación

direccion Avellaneda Al 800, Vicente Lopez
  • codigo
    Código de la propiedad: MATMEN-27
  • aviso
    Reportar aviso

¿Querés reportar algún problema con este aviso?

Seleccioná el motivo:

cerrar

Contactar a la inmobiliaria

Contactar a la inmobiliaria Cerrar modal

Zipcode

VENTA Block Edificio Comercial Oficinas Empresa Pyme Patios Conectividad Florida Vicente López

Propiedad