ALQUILER Local Comercial Olivos Avenida Di... | BuscadorProp
🔍

¡Buscamos por vos! ¡Tu búsqueda a todas las inmobiliarias!

¡Quiero probarlo!

compartir Compartir:

  • facebook
  • whatsapp
  • envelope
  • link
Quitar la propiedad de favoritos Guardá tu propiedad favorita

Local en Alquiler en Olivos

direccion Local Comercial - Olivos, Vicente Lopez, Olivos
direccion Ver en mapa
Alquiler
$ 5.900.000
casas Locales
1 Ambiente
1 toilette
1 baño
29 años de Antigüedad
Superficie total 537m2
Superficie cubierta 537m2
Orientación Oeste

ALQUILER Local Comercial Olivos Avenida Divisible Seguridad

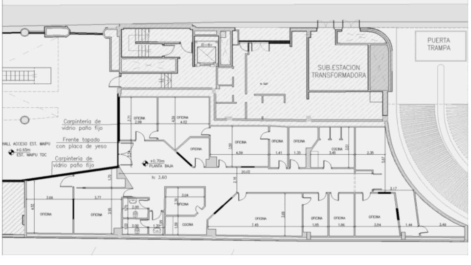
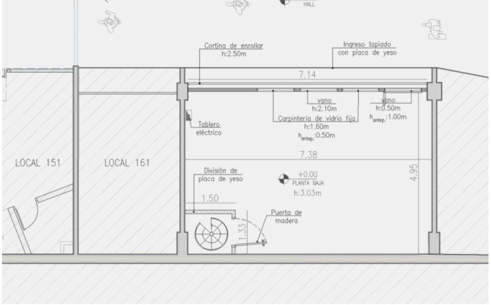
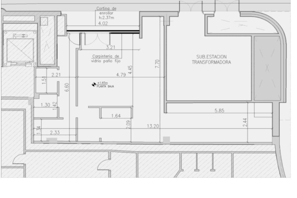
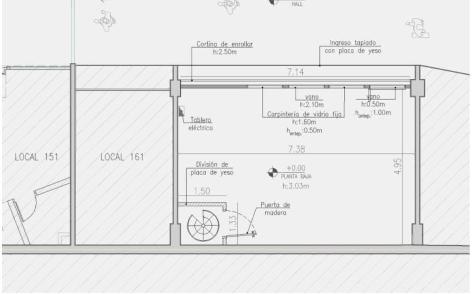
GRAN LOCAL DIVISIBLE (Olivos, Vicente López)Gran local comercial de 537 m² totales, planta libre divisible en hasta 6 módulos combinables. Frente lineal conjunto aprox. 39,4 m. Ideal showroom/servicios ligeros.

Configuración flexible con posibilidad de integración y subdivisión. Uno de los módulos posee entrepiso. Alturas útiles diversas según sector. Estado general a adecuar según rubro.

-Superficie total: 537,46 m² aprox.
-Posibles módulos: 35 m² | 15 m² | 71 m² (PB+EP) | 72 m² | 65 m² | 280 m²
-Frente lineal conjunto: aprox. 39,4 m
-Alturas útiles: variables (incluye PB y entrepiso en un módulo)
-Cerramientos: cortinas de enrollar
-Carpinterías: vidriadas
-Estado: a adecuar según rubro

Ficha técnica
-Ambientes: 1 (planta libre)
-Plantas: PB + entrepiso parcial
-Divisible: sí (hasta 6 módulos combinables)
-Instalaciones: eléctrica/agua/cloaca a adecuar según rubro
-Disponible

• La publicación incluye planos, tour virtual y video para que puedas recorrer la propiedad en detalle antes de visitarla.
• ¿Querés vender o alquilar tu propiedad?
• Somos anunciantes Premier en Zonaprop, Mercado Libre Oro y Argenprop Adinco Premium. Trabajamos con fotografía profesional, video, recorrido virtual, planos y estrategia personalizada para lograr el mejor resultado.
• Si necesitás una tasación profesional o querés que trabajemos tu propiedad con este nivel de presentación, escribime y lo conversamos sin compromiso.

Accesibilidad (Ley 5115)
-En cumplimiento a la ley 5115, se informa que el inmueble ES accesible para personas con movilidad reducida.
Corredor interviniente: Milagros Sarachaga CUCICBA 7799 Paolo Menghi CUCICBA 9171 CMCPDJLM 1005

La tasación, intermediación y la conclusión de las operaciones sobre esta propiedad son actividades exclusivas de este corredor matriculado, conforme las previsiones de la ley 20.266, la ley CABA 2340, la ley provincial 10.973 y sus modif. y las normas reglamentarias dictadas por los colegios departamentales.

Comodidades Comodidades

  • wifi

    Wifi

Ubicación Ubicación

direccion Local Comercial - Olivos, Vicente Lopez, Olivos
  • codigo
    Código de la propiedad: MATMEN-a14
  • aviso
    Reportar aviso

¿Querés reportar algún problema con este aviso?

Seleccioná el motivo:

cerrar

Contactar a la inmobiliaria

Contactar a la inmobiliaria Cerrar modal

Zipcode

ALQUILER Local Comercial Olivos Avenida Divisible Seguridad

Propiedad