687398 | Venta Casa Apto Crédito Patio Co... | BuscadorProp
🔍

¡Buscamos por vos! ¡Tu búsqueda a todas las inmobiliarias!

¡Quiero probarlo!

compartir Compartir:

  • facebook
  • whatsapp
  • envelope
  • link
Quitar la propiedad de favoritos Guardá tu propiedad favorita

Casa en Venta en Villa Urquiza

direccion Donado Al 3200, Villa Urquiza
direccion Ver en mapa
Venta
USD 375.000
Sin expensas
casas Casas
9 Ambientes
4 dormitorios
2 toilettes
2 baños
3 cocheras
65 años de Antigüedad
Habitada
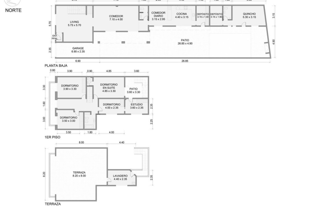
Superficie total 238m2
Superficie cubierta 206m2
2 pisos
Orientación Este

Venta Casa Apto Crédito Patio Cochera Terraza Ventilación Natural Iluminación Villa Urquiza

Superficie total construida: 238.57 m².

Superficie cubierta: 206 m².
Superficie semicubierta: 32.57 m².
Superficie descubierta: 108 m².
Superficie total: 347 m².

Ubicada frente al boulevard Donado, en un corredor verde y abierto con vegetación consolidada, aire libre y calidad ambiental. Excelente acceso vehicular inmediato a Panamericana, General Paz y cercanía al DOT Baires Shopping. Zona con sólidos medios de transporte público: estación Juan Manuel de Rosas (Subte B y Urquiza), Metrobús sobre Av. de los Incas y Triunvirato, y líneas 71, 67, 110, 113, 107 y 176. Entorno con carácter residencial, buena conectividad y espacios verdes.

• La publicación incluye planos, tour virtual y video para que puedas recorrer la propiedad en detalle antes de visitarla.

La casa se desarrolla sobre un lote de 8.68 m x 34.58 m, con tipología tipo chorizo tradicional y dos niveles superiores conformando un volumen principal. Con orientación que favorece la ventilación cruzada y vistas hacia verde, ofrece privacidad, luz natural y variedad de usos residenciales. Se organiza en tres niveles, con área social y patio verde en planta baja, dormitorios en nivel superior y terraza en el último nivel.

El sector exterior incluye patio con vegetación (espacio madre de la propiedad) parrilla con bacha lateral, galería semi cubierta y terraza azotea accesible. Se suma otra terraza no accesible con potencial de ampliación. Cochera cubierta con portón automático, más espacio descubierto para dos vehículos y posibilidad de ampliar hacia el patio.

La cocina es amplia, tipo americana integrada al comedor diario, con ambiente de servicio aledaño tipo alacena. Cuenta con buen amoblamiento y circulación funcional, con conexión directa al área social y al exterior.

Posee 9 ambientes y 4 dormitorios, uno de ellos con toilette en suite. Incluye dependencia con baño, espacios aptos para estudio o escritorio y distribución flexible. Pisos de madera tarugada y parquet en distintos sectores. Persianas de enrollar. Balcón corrido de todo el ancho en nivel intermedio.

El inmueble cuenta con calefacción por estufas a gas, termotanque Rheem Saiar de gran capacidad, calefón ORBIS, horno a gas LONGVIE y múltiples equipos de aire acondicionado tipo split (Surrey, Coventry, Ariston) instalados en distintos ambientes.

Características destacadas
-Superficie total del lote: 286.8 m²
-Tipología tipo chorizo con 2 niveles superiores
-Patio verde con vegetación consolidada
-Terraza accesible y otra de oportunidad
-Galería semicubierta exterior
-Balcón corrido
-4 dormitorios
-Dependencia con baño
-2 baños completos y 2 toilettes
-Cocina americana integrada con alacena tipo ambiente
-Cochera cubierta más espacio descubierto para dos vehículos
-Pisos de madera tarugada y parquet

*ANTIGUEDAD: Es estimada en 65 años hasta recibir del registro de la propiedad inmueble, los informes de dominio correspondientes.

Accesibilidad - Ley 5115
En cumplimiento a la ley 5115, se informa que el inmueble ES accesible para personas con movilidad reducida únicamente en planta baja, no así en los niveles superiores.

• ¿Querés vender o alquilar tu propiedad?

• Somos anunciantes Premier en Zonaprop, Mercado Libre Oro y Argenprop Adinco Premium. Trabajamos con fotografía profesional, video, recorrido virtual, planos y estrategia personalizada para lograr el mejor resultado.
• Si necesitás una tasación profesional o querés que trabajemos tu propiedad con este nivel de presentación, escribime y lo conversamos sin compromiso.

Corredor interviniente: Milagros Sarachaga CUCICBA 7799 Paolo Menghi CUCICBA 9171 CMCPDJLM 1005

La tasación, intermediación y la conclusión de las operaciones sobre esta propiedad son actividades exclusivas de este corredor matriculado, conforme las previsiones de la ley 20.266, la ley CABA 2340, la ley provincial 10.973 y sus modif. y las normas reglamentarias dictadas por los colegios departamentales.

Las medidas, superficies y expensas consignadas en la presente son aproximadas; y al solo efecto orientativo. Los datos definitivos son los que surgirán del título de la propiedad y de los comprobantes respaldatorios.

Financiacion Financiación

  • Apto para crédito

Comodidades Comodidades

  • parrilla

    Con parrilla

  • patio

    Con patio

  • jardin

    Con jardin

  • mascota

    Acepta mascotas

  • wifi

    Wifi

  • balcon

    Con balcón

  • aireacondicionado

    Aire acondicionado

  • calefaccion

    Calefacción

  • solarium

    Solarium

Ver todaschevron-down
Ver menoschevron-up

Ubicación Ubicación

direccion Donado Al 3200, Villa Urquiza
  • codigo
    Código de la propiedad: MATMEN-26
  • aviso
    Reportar aviso

¿Querés reportar algún problema con este aviso?

Seleccioná el motivo:

cerrar

Contactar a la inmobiliaria

Contactar a la inmobiliaria Cerrar modal

Zipcode

Venta Casa Apto Crédito Patio Cochera Terraza Ventilación Natural Iluminación Villa Urquiza

Propiedad