687439 | Galpón en La Reja - La Reja - GB... | BuscadorProp
🔍

¡Buscamos por vos! ¡Tu búsqueda a todas las inmobiliarias!

¡Quiero probarlo!

compartir Compartir:

  • facebook
  • whatsapp
  • envelope
  • link
Quitar la propiedad de favoritos Guardá tu propiedad favorita

Depósito / Galpón en Alquiler en La Reja

direccion Colectora Acceso Oeste, La Reja
direccion Ver en mapa
Alquiler
USD 21.000
Sin expensas
casas Depósitos / Galpones
5 años de Antigüedad
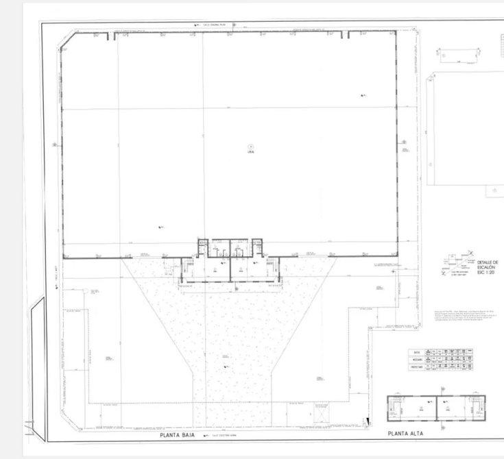
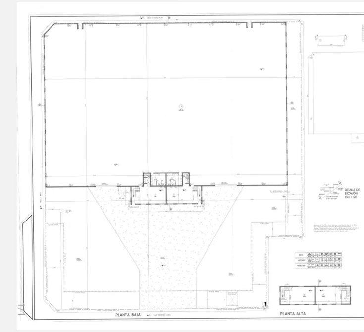
Superficie total 3252m2
Superficie cubierta 3252m2
Zonificación industrial

Galpón en La Reja

ALQUILER GALPON DEPÓSITO 3252M COLECTORA ACC OESTEDEPOSITO EN ALQUILER 3252 M² LA REJA BUENOS AIRES ZONA OESTE

Depósito logístico de última generación ubicado estratégicamente sobre Avenida Gaona en La Reja, partido de Moreno. Inmueble industrial construido en 2020 con diseño moderno y funcional, que ofrece una superficie total de 3252 m² cubiertos sobre un terreno de 5504 m².
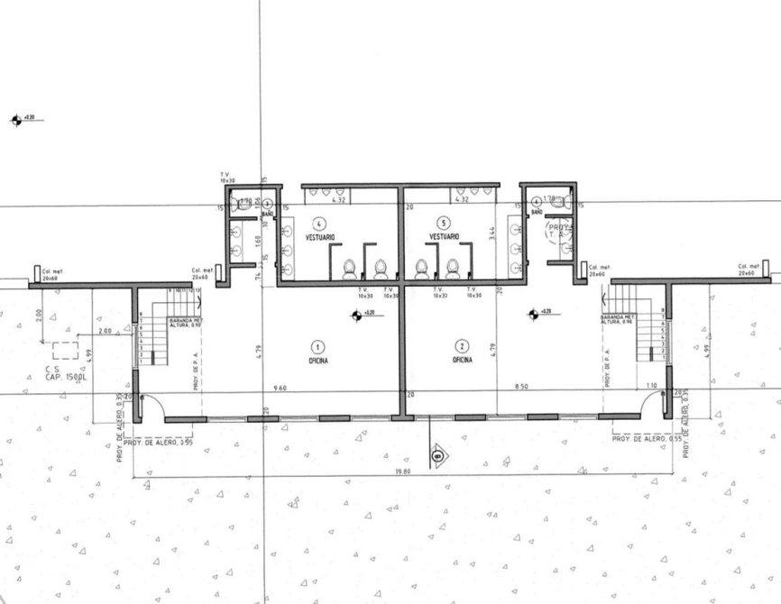
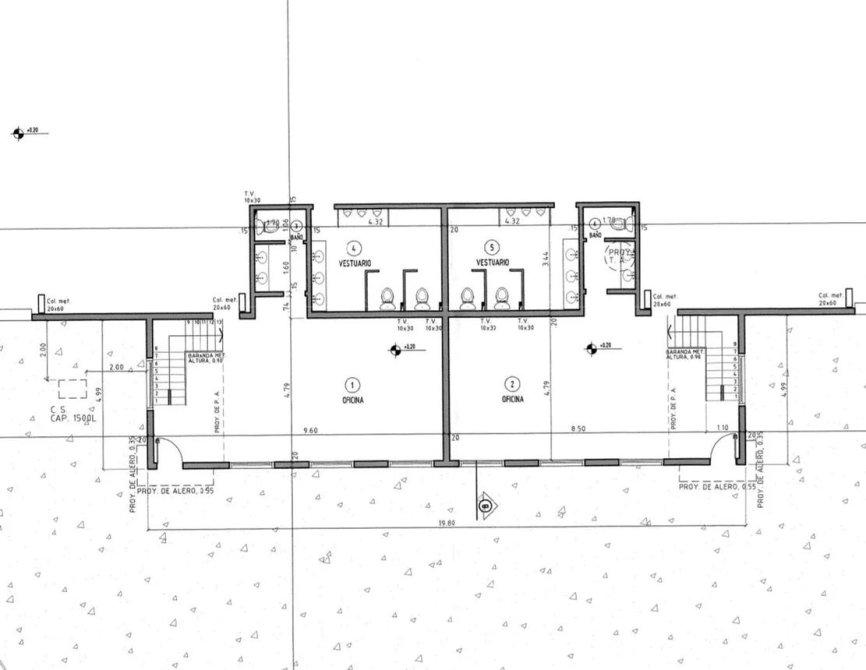
Cuenta con Baños y Vestuarios modernos en planta baja y dos Oficinas en planta alta. con acceso a balcón.

Infraestructura de primer nivel con excelente estado de conservación, preparado para operaciones logísticas y almacenamiento industrial. Cuenta con accesos amplios, altura reglamentaria y pavimento perimetral que facilita la circulación de camiones y contenedores.

Servicios disponibles: red eléctrica trifásica, iluminación LED, sistema contra incendios, portón de acceso automatizado y perímetro completamente cerrado. Ubicación privilegiada con conexión directa a principales rutas de acceso del Área Metropolitana de Buenos Aires.

Ideal para empresas de logística, distribución, almacenamiento y producción que requieran un espacio funcional y estratégicamente localizado. Posibilidad de adaptación según necesidades específicas del potencial inquilino.

VALOR ALQUILER: U$D 21.000 + i.v.a

Características técnicas:
- Superficie cubierta: 3252 m²
- Superficie total de terreno: 5504 m²
- Año de construcción: 2020
- Estado general: Excelente
- Zonificación: Industrial

MGL7570164

Comodidades Comodidades

  • wifi

    Wifi

Ubicación Ubicación

direccion Colectora Acceso Oeste, La Reja
  • codigo
    Código de la propiedad: MGL7570164
  • aviso
    Reportar aviso

¿Querés reportar algún problema con este aviso?

Seleccioná el motivo:

cerrar

Contactar a la inmobiliaria

Contactar a la inmobiliaria Cerrar modal

Melogno Propiedades

Galpón en La Reja

Propiedad