Galpon y vivienda excelente estado | BuscadorProp
🔍

¡Buscamos por vos! ¡Tu búsqueda a todas las inmobiliarias!

¡Quiero probarlo!

compartir Compartir:

  • facebook
  • whatsapp
  • envelope
  • link
Quitar la propiedad de favoritos Guardá tu propiedad favorita

Casa en Venta en Lanús Oeste

direccion Mamberti 631, Lanús Oeste
direccion Ver en mapa
Venta
USD 195.000
casas Casas
5 Ambientes
2 dormitorios
1 toilette
2 baños
7 cocheras
Estado Muy bueno
Superficie total 437m2
Superficie cubierta 285m2
2 pisos
Disposición Frente
Orientación Norte-oeste

Publicado hace 3 meses

Galpon y vivienda excelente estado

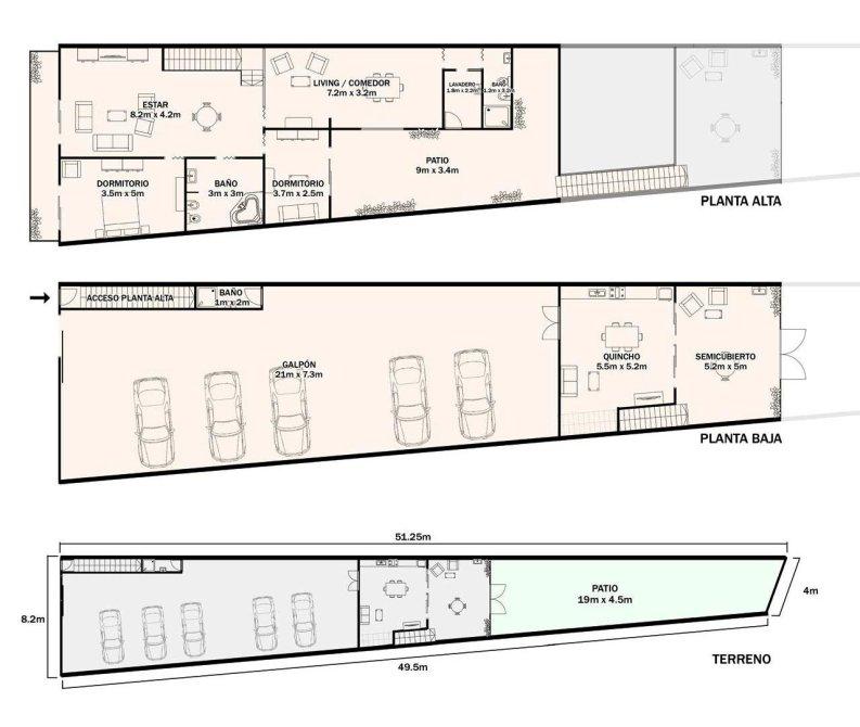
Planta baja es un deposito que actualmente se utiliza como alquiler de 7 cocheras + un toilette y en la primera planta con acceso Independiente casa de 3 ambientes. Quincho y fondo con patio cubierto

Planta Baja
En la planta baja, un amplio deposito de 7.30x21 mts. A continuacion quincho con parrilla y fondo libre.

Primera Planta
Acceso por escalera de granito directamente a la planta alta a un namplio living con balcon corrido a la calle, dos dormitorios, uno de ellas con acceso directo al balcón corrido, mientras que el otro da a un segundo gran patio, al que se accede a través de una escalera desde el patio de la planta baja. Integrando la planta alta un gran comedor, dos baños completos y un lavadero.

Financiacion Financiación

  • Apto para crédito

Comodidades Comodidades

  • parrilla

    Con parrilla

  • patio

    Con patio

  • balcon

    Con balcón

  • calefaccion

    Calefacción

Ubicación Ubicación

direccion Mamberti 631, Lanús Oeste
  • aviso
    Reportar aviso

¿Querés reportar algún problema con este aviso?

Seleccioná el motivo:

cerrar

Contactar a la inmobiliaria

Contactar a la inmobiliaria Cerrar modal

Civeira Bienes Raices

Galpon y vivienda excelente estado

Propiedad