692947 | Invertí en en San Antonio, cann... | BuscadorProp
🔍

¡Buscamos por vos! ¡Tu búsqueda a todas las inmobiliarias!

¡Quiero probarlo!

compartir Compartir:

  • facebook
  • whatsapp
  • envelope
  • link
Quitar la propiedad de favoritos Guardá tu propiedad favorita

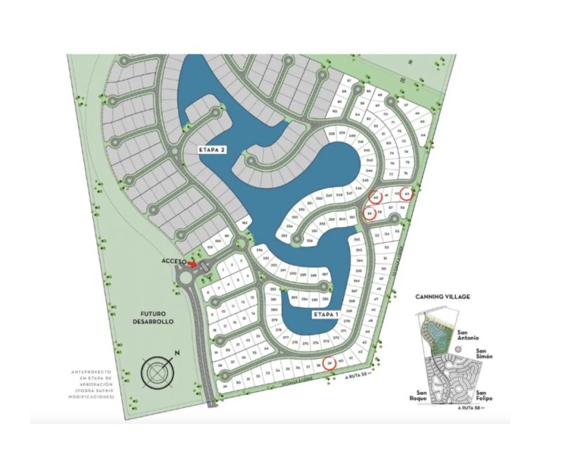
Lote / Terreno en Venta en Canning

direccion El Deslinde 1107, Canning
direccion Ver en mapa
Venta
USD 30.000
casas Lotes / Terrenos
Superficie total 600m2

Publicado hace 3 meses

Invertí en en San Antonio, canning village y desarrolla tu próximo proyecto

San Antonio – Canning Village

Excelente oportunidad en Barrio San Antonio, dentro del desarrollo Canning Village.
Lotes de 600 metros cuadrados, disponibles a partir de USD 30.000, en un entorno residencial planificado, con infraestructura completa y fuerte proyección.

El proyecto cuenta con redes subterráneas de electricidad, agua, cloacas y gas, calles asfaltadas con cordón cuneta y una planificación urbana pensada para el desarrollo de viviendas permanentes y de calidad.

Dentro del master plan se destacan una laguna central de aproximadamente 5 hectáreas, SUM y sector deportivo, aportando espacios de recreación y vida social al barrio.

Ubicado a solo 40 km de Capital Federal, con rápido acceso desde autopista, Canning Village se desarrolla en una de las zonas con mayor crecimiento del corredor sur, combinando tranquilidad residencial con cercanía a restaurantes, centros comerciales, colegios y servicios de la zona de Canning.

Una propuesta ideal tanto para quienes proyectan su vivienda a mediano plazo como para inversores que buscan ingresar en una etapa temprana de desarrollo, con expectativa de valorización futura.

Características principales:
  • Lotes de 600 m²
  • Infraestructura subterránea completa
  • Calles asfaltadas con cordón cuneta
  • Laguna central, SUM y sector deportivo
  • Venta por cesión de derechos
  • Posesión estimada: febrero 2026

Consultanos para conocer disponibilidad y valores.


VAINSTEIN GODI BIENES RAÍCES
NADIA VAINSTEIN GODI MAT 4353 CPMCLZ


Aviso legal:
La información, medidas y superficies indicadas son aproximadas y no constituyen documentación contractual. Las definitivas surgirán del título de propiedad del inmueble.
Los importes de expensas, servicios e impuestos están sujetos a verificación.
El valor del inmueble puede ser modificado sin previo aviso.
Operación supeditada a que el propietario cumplimente con la Reg. 2371 de la AFIP (COTI).

Ubicación Ubicación

direccion El Deslinde 1107, Canning
  • aviso
    Reportar aviso

¿Querés reportar algún problema con este aviso?

Seleccioná el motivo:

cerrar

Contactar a la inmobiliaria

Contactar a la inmobiliaria Cerrar modal

Vainstein Godi Bienes Raíces

Invertí en en San Antonio, canning village y desarrolla tu próximo proyecto

Propiedad