693259 | VENTA CASA JOSE MARMOL 4 DORMITOR... | BuscadorProp
🔍

¡Buscamos por vos! ¡Tu búsqueda a todas las inmobiliarias!

¡Quiero probarlo!

compartir Compartir:

  • facebook
  • whatsapp
  • envelope
  • link
Quitar la propiedad de favoritos Guardá tu propiedad favorita

Casa en Venta en José Mármol

direccion Conscripto Bernardi Al 2400, José Mármol
direccion Ver en mapa
Venta
USD 175.000
Sin expensas
casas Casas
Superficie total 150m2
Superficie cubierta 150m2

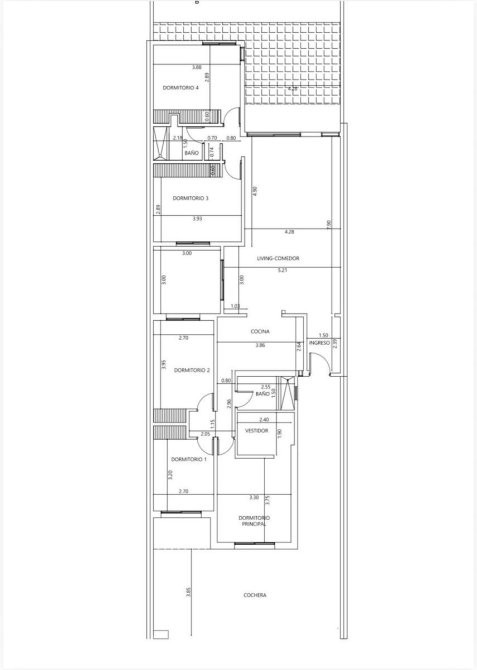
VENTA CASA JOSE MARMOL 4 DORMITORIOS

CASA DESARROLLADA EN UNA SOLA PLANTA. PORTON DOBLE DE ACCESO AL ESPACIO PARA DOS AUTOS, LIVING COMEDOR, COCICNA, CUATRO DORMITORIOS, DOS BAÑOS, QUINCHO ( 8,66 X 5)
ESCRITURA A CARGO DE LA PARTE COMPRADORA

Ubicación Ubicación

direccion Conscripto Bernardi Al 2400, José Mármol
  • codigo
    Código de la propiedad: DHO7695314
  • aviso
    Reportar aviso

¿Querés reportar algún problema con este aviso?

Seleccioná el motivo:

cerrar

Contactar a la inmobiliaria

Contactar a la inmobiliaria Cerrar modal

Darquier Propiedades

VENTA CASA JOSE MARMOL 4 DORMITORIOS

Propiedad