OFICINA EN VENTA 104 M2 EN BARRANCAS DE BE... | BuscadorProp
🔍

¡Buscamos por vos! ¡Tu búsqueda a todas las inmobiliarias!

¡Quiero probarlo!

compartir Compartir:

  • facebook
  • whatsapp
  • envelope
  • link
Quitar la propiedad de favoritos Guardá tu propiedad favorita

Oficina en Venta en Belgrano

direccion Av. Del Libertador Al 6200, Belgrano
direccion Ver en mapa
Venta
USD 362.700
Sin expensas
casas Oficinas
4 Ambientes
2 toilettes
Superficie total 150m2
Superficie cubierta 93m2
Disposición Contrafrente
Orientación Norte

OFICINA EN VENTA 104 M2 EN BARRANCAS DE BELGRANO, CABA

Oficinas premium en DOME BUSINESS PLAZA – Esquina icónica de Av. del Libertador y Olazábal

Ubicadas estratégicamente, con vistas privilegiadas y fácil acceso a todos los puntos de la Ciudad de Buenos Aires, estas oficinas combinan diseño, funcionalidad y estilo.

DOME, sinónimo de Dinámico, Original, Moderno y Elegante, se encuentra rodeado de espacios verdes, centros culturales, bares, restaurantes y opciones de recreación y deporte, ofreciendo un entorno laboral inspirador y completo.

El edificio contará con 14 niveles de oficinas con gran luminosidad, 3 subsuelos de cocheras, frente de Courtain Wall y exclusivos amenities para transformar tu jornada laboral:

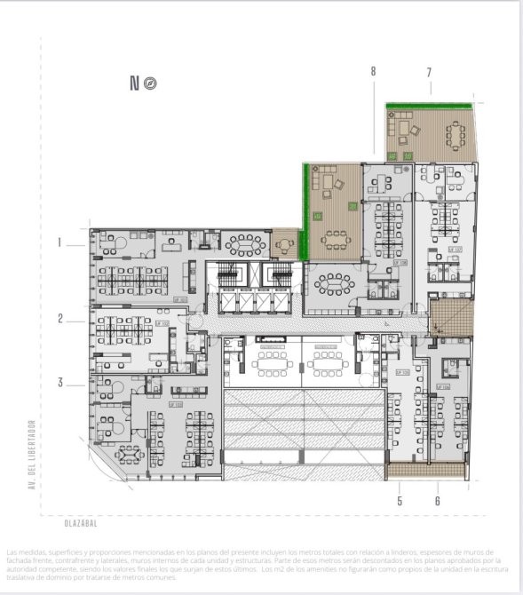
UBICACION EN EL PLANO 7

Amplio hall de acceso

Salones de reuniones y SUM en primer y noveno nivel

Cocheras en tres subsuelos

DOME BUSINESS PLAZA: diseño de vanguardia, comodidad y experiencias únicas para tu oficina.

Aviso Legal: Todas las medidas e Información de : expensas, impuestos y servicios y datos sobre la arquitectura de esta propiedad son aproximados y se encuentran sujetos a revisión por el interesado. Pueden no estar actualizados al momento de su visualización, ya que fueron brindados por el propietario a la hora de su publicación. Ley 5115: EXCEPTO que en la descripción de la propiedad se indique lo contrario, el edificio puede no contar con rampa para personas con movilidad reducida, y no ser Accesible para personas con discapacidades físicas.- Martillero y Corredor Publico, Darío Lorenzo, CMPCAL 520 / CUCICBA 8741 La tasación, intermediación y la conclusión de las operaciones sobre esta propiedad son actividades exclusivas de este corredor matriculado, conforme las previsiones de la ley 20.266, la ley CABA 2340, la ley Provincial 10.973 y sus modif. y las normas reglamentarias dictadas por los colegios departamentales.

Comodidades Comodidades

  • wifi

    Wifi

  • balcon

    Con balcón

Ubicación Ubicación

direccion Av. Del Libertador Al 6200, Belgrano
  • codigo
    Código de la propiedad: DAP7580016
  • aviso
    Reportar aviso

¿Querés reportar algún problema con este aviso?

Seleccioná el motivo:

cerrar

Contactar a la inmobiliaria

Contactar a la inmobiliaria Cerrar modal

Dalo Propiedades SAS

OFICINA EN VENTA 104 M2 EN BARRANCAS DE BELGRANO, CABA

Propiedad