Departamento 3 Ambientes en Venta c/ Terra... | BuscadorProp
🔍

¡Buscamos por vos! ¡Tu búsqueda a todas las inmobiliarias!

¡Quiero probarlo!

compartir Compartir:

  • facebook
  • whatsapp
  • envelope
  • link
Quitar la propiedad de favoritos Guardá tu propiedad favorita

Departamento en Venta en Tigre

direccion Lagunita - Nordelta 1000, Tigre
direccion Ver en mapa
Venta
USD 353.500
Sin expensas
casas Departamentos
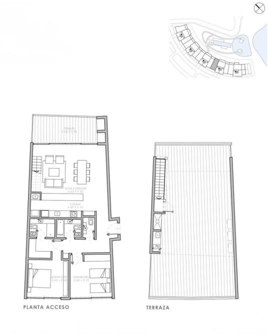
3 Ambientes
2 dormitorios
1 toilette
3 baños
1 cochera
Superficie cubierta 80m2
2 pisos
Disposición Frente
Orientación Oeste

Departamento 3 Ambientes en Venta c/ Terraza y Pergola Propia, en Pozo Lagunitas, Nordelta

Departamento 3 ambientes en venta – Edificio Lagunita, Nordelta

Unidad en construcción con terraza y pérgola, en un desarrollo de diseño moderno frente a la laguna.
Entrega estimada: junio 2026, con financiación.

Forma de pago: 50% a la adhesión y saldo en cuotas hasta la entrega.

El proyecto: edificio curvo con vista a la laguna, parque central forestado, pileta semiolímpica y para chicos. Unidades de 2, 3 y 4 ambientes, con plantas bajas con jardín y terrazas privadas en el tercer piso.

Calidades: pisos de porcelanato o PVC símil madera, carpinterías PVC con DVH, calefacción por piso radiante eléctrico, preinstalación de aire acondicionado, cocinas con horno eléctrico y anafe, mesadas de granito o Silestone, griferías y sanitarios de primera línea.

Lagunita combina diseño, naturaleza y confort, con amplios ventanales y espacios verdes como eje del proyecto.
Consultá por unidades disponibles y coordiná visita al showroom.

Aviso Legal: Todas las medidas e Información de : expensas, impuestos y servicios y datos sobre la arquitectura de esta propiedad son aproximados y se encuentran sujetos a revisión por el interesado. Pueden no estar actualizados al momento de su visualización, ya que fueron brindados por el propietario a la hora de su publicación. Ley 5115: EXCEPTO que en la descripción de la propiedad se indique lo contrario, el edificio puede no contar con rampa para personas con movilidad reducida, y no ser Accesible para personas con discapacidades físicas.- Martillero y Corredor Publico, Darío Lorenzo, CMPCAL 520 / CUCICBA 8741 La tasación, intermediación y la conclusión de las operaciones sobre esta propiedad son actividades exclusivas de este corredor matriculado, conforme las previsiones de la ley 20.266, la ley CABA 2340, la ley Provincial 10.973 y sus modif. y las normas reglamentarias dictadas por los colegios departamentales.

Comodidades Comodidades

  • pileta

    Con pileta

  • parrilla

    Con parrilla

  • mascota

    Acepta mascotas

  • wifi

    Wifi

  • balcon

    Con balcón

  • calefaccion

    Calefacción

Ubicación Ubicación

direccion Lagunita - Nordelta 1000, Tigre
  • codigo
    Código de la propiedad: DBU63139 AP7606889
  • aviso
    Reportar aviso

¿Querés reportar algún problema con este aviso?

Seleccioná el motivo:

cerrar

Contactar a la inmobiliaria

Contactar a la inmobiliaria Cerrar modal

Dalo Propiedades SAS

Departamento 3 Ambientes en Venta c/ Terraza y Pergola Propia, en Pozo Lagunitas, Nordelta

Propiedad