Venta Casa Pasillo 3 Dormitorios Reciclado... | BuscadorProp
🔍

¡Buscamos por vos! ¡Tu búsqueda a todas las inmobiliarias!

¡Quiero probarlo!

compartir Compartir:

  • facebook
  • whatsapp
  • envelope
  • link
Quitar la propiedad de favoritos Guardá tu propiedad favorita

Casa en Venta en Rosario

direccion Brown Al 2700, Rosario
direccion Ver en mapa
Venta
USD 295.000
casas Casas
4 Ambientes
3 dormitorios
1 toilette
1 baño
Superficie cubierta 154m2
2 pisos
Disposición Interno
Orientación Este

Venta Casa Pasillo 3 Dormitorios Reciclado De Autor. Pichincha

Venta Casa de Pasillo 3 Dormitorios Piscina. No PH. Pichincha

Ubicación privilegiada de la ciudad, sobre calle Brown, entre las calles Ovidio Lagos y Callao, en Barrio Pichincha. Rodeado de propuestas gastronómica, comercial y cultural, con proximidad a áreas verdes de descanso pero sin alejarse del ritmo urbano. También cercano a varias lineas de transporte con excelente conectividad ofreciendo practicidad y calidad de vida. 

En el pasillo hay 6 unidades. Esta pertenece a la Unidad 4. No PH.

Esta casa completamente a estrenar nos trae una propuesta moderna y una organización funcional.

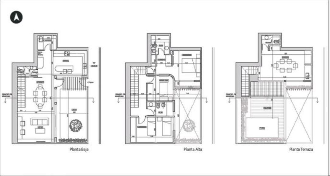
PLANTA BAJA
Patio de ingreso, al acceder nos encontramos con un espacio verde que recibe luz natural y aire libre.
Cuenta con una cocina con isla que se presenta como un ambiente independiente y funcional.
Estar comedor amplio, siendo un espacio confortable y de disfrute.
También cuenta con un toilette, y lavadero independiente con acceso desde la cocina.

PLANTA ALTA
Dormitorio suite, ofreciendo de este modo comodidad y privacidad.
Dos dormitorios equipados con placares empotrados de estilo moderno y amplia capacidad de guardado, estos espacios comparten un baño completo de uso común.
Detalles y terminaciones Importantes: los baños fueron diseñados con revestimientos, griferías y sanitarios de alta calidad, priorizando la durabilidad y el diseño.

TERRAZA
Cuenta con un quincho amplio y un espacio equipado con parrilla, mesada con bacha y lugar suficiente para colocar una gran mesa, ideal para reuniones.
Solarium y piscina: este espacio invita a relajarse y disfrutar en la privacidad de tu hogar. Descanso, reuniones y actividad social.

La casa fue construida desde sus cimientos.
ESPECIFICACIONES CONSTRUCTIVAS: estructura de Hormigón Armado, mampostería en ladrillos. Terminaciones en yesería y/o placas en paredes, y cielorraso suspendido de durlock.

ABERTURAS Cerramientos de Aluminio de alta prestación. Vidrios de DVH (doble vidriado hermético, sujeto a modelo de ventana).

PUERTAS Puerta de ingreso de seguridad. Puertas interiores de alta prestación con marcos y hoja de WPC.

PISOS Y REVESTIMIENTOS Pisos de Porcelanato, revestimientos y zócalos EPS de primera línea.

CLIMATIZACIÓN Se prevé la pre instalación de aires acondicionados. Se prevé la pre instalación de radiadores e instalación de Caldera.

MOBILIARIO DE COCINA Alacena y bajo mesada de diseño con iluminación en mobiliario. Mesada de Silestone o similar calidad. Bacha de acero inoxidable con griferías de primera línea. Espacio disponible para purificador y/o extractor de cocina. Horno eléctrico y anafe a gas embutido.

DORMITORIOS Y BAÑOS Placares completos con frentes corredizos o de abrir. Diseño interior con estantes, cajones y barrales. Los baños cuentan con mampara en sus duchas, vanitory completo y espejos. Sanitarios y griferías de primera marca.

JARDÍN Y TERRAZA Jardín con intervención de paisajismo en Planta Baja. En la última planta, Quincho con espacio para parrilla, mesada con bacha y toilette. En el exterior se ubica una pérgola, la pileta y un solárium con intervención de canteros y verde.

SERVICIOS Medidor de agua independiente, tablero eléctrico independiente y servicio de Litoral Gas habilitado. Climatización y agua caliente prevista por caldera.

DOMOTICA Central de control: pantalla táctil para controlar luces, acondicionamiento, cámaras de seguridad, portero, sensores, entre otros. Diseñado en función a cada proyecto. Integración de comando por voz, tipo Alexa o Google assistant. Sistema de iluminación interior y exterior: circuitos de iluminación on/off independientes. Cámaras se seguridad y sensores: diseñadas en función al proyecto. Frente de portero con cámara.

Comodidades Comodidades

  • pileta

    Con pileta

  • parrilla

    Con parrilla

  • patio

    Con patio

  • mascota

    Acepta mascotas

  • wifi

    Wifi

  • calefaccion

    Calefacción

  • solarium

    Solarium

Ver todaschevron-down
Ver menoschevron-up

Ubicación Ubicación

direccion Brown Al 2700, Rosario
  • codigo
    Código de la propiedad: EHO7813625
  • aviso
    Reportar aviso

¿Querés reportar algún problema con este aviso?

Seleccioná el motivo:

cerrar

Contactar a la inmobiliaria

Contactar a la inmobiliaria Cerrar modal

Eigen Propiedades

Venta Casa Pasillo 3 Dormitorios Reciclado De Autor. Pichincha

Propiedad