Venta Departamento Dos Dormitorios Dos Pat... | BuscadorProp
🔍

¡Buscamos por vos! ¡Tu búsqueda a todas las inmobiliarias!

¡Quiero probarlo!

compartir Compartir:

  • facebook
  • whatsapp
  • envelope
  • link
Quitar la propiedad de favoritos Guardá tu propiedad favorita

Departamento en Venta en Rosario

direccion San Juan Al 900, Rosario
direccion Ver en mapa
Venta
USD 92.500
casas Departamentos
3 Ambientes
2 dormitorios
1 baño
Superficie total 64m2
Superficie cubierta 49m2
1 piso
Disposición Interno
Orientación Norte

Venta Departamento Dos Dormitorios Dos Patios Planta Baja Reciclado. Centro

Venta Departamento Dos Dormitorios Dos Patios Planta Baja Reciclado. Centro

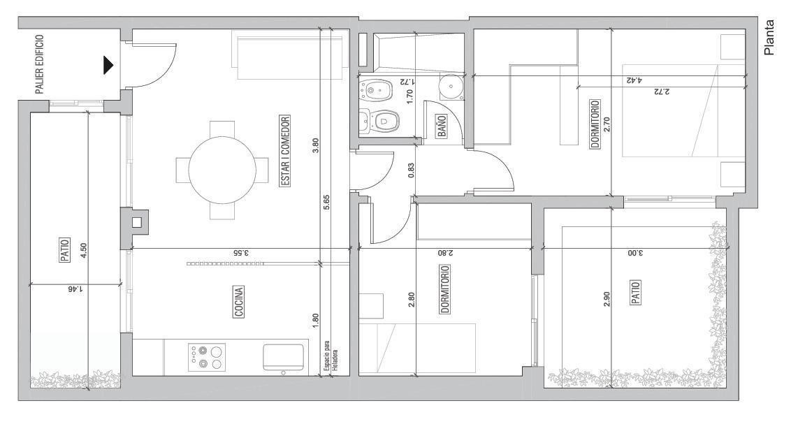
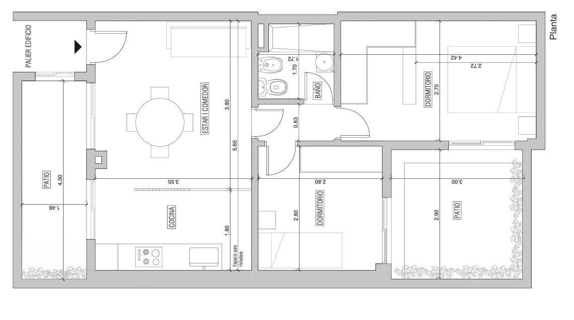
Unidad ubicada en la planta baja del edificio situado en calle San Juan 953 de la ciudad de Rosario, destinada a vivienda familiar, con acceso por la entrada común.

En el ingreso a la propiedad nos encontramos con un amplio espacio de estar-comedor, y una cocina semi integrada. En su frente cuenta con un patio, que aporta amplitud e iluminación.
Dispone de dos dormitorios equipados con amplios placares, que ofrecen gran capacidad de guardado. Además, cuenta con un baño completo.
Desde los mismos, se accede a un segundo patio. Esta característica garantiza una excelente ventilación e inmejorable iluminación natural.
Una propuesta que combina comodidad, calidad y confort.
La unidad cuenta con aproximadamente aproximadamente 49 m2 cubiertos y 15.30 m2 en sus patios.
ENTREGA INMEDIATA.

Comodidades Comodidades

  • pileta

    Con pileta

  • parrilla

    Con parrilla

  • patio

    Con patio

  • jardin

    Con jardin

  • wifi

    Wifi

Ubicación Ubicación

direccion San Juan Al 900, Rosario
  • codigo
    Código de la propiedad: EPH7830099
  • aviso
    Reportar aviso

¿Querés reportar algún problema con este aviso?

Seleccioná el motivo:

cerrar

Contactar a la inmobiliaria

Contactar a la inmobiliaria Cerrar modal

Eigen Propiedades

Venta Departamento Dos Dormitorios Dos Patios Planta Baja Reciclado. Centro

Propiedad