705958 | Departamento 4 ambientes en venta... | BuscadorProp
🔍

¡Buscamos por vos! ¡Tu búsqueda a todas las inmobiliarias!

¡Quiero probarlo!

compartir Compartir:

  • facebook
  • whatsapp
  • envelope
  • link
Quitar la propiedad de favoritos Guardá tu propiedad favorita

Departamento en Venta en Castelar

direccion Rodriguez Peña 838 (Piso 3°) Con Cochera, Castelar
direccion Ver en mapa
Venta
USD 250.000
Sin expensas
casas Departamentos
4 Ambientes
3 dormitorios
1 toilette
2 baños
1 cochera
Superficie total 100m2
Superficie cubierta 100m2
Disposición Frente
Orientación Este

Departamento 4 ambientes en venta Castelar Norte

Venta Departamento 4 ambientes - CASTELAR NORTE -

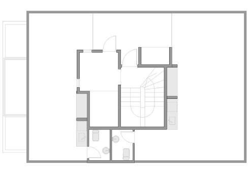
Exclusivo departamento de 4 ambientes.  Dispone de amplio y luminoso living comedor con balcón, integrado a la cocina, toilette, dos dormitorios con placard y baño completo, mas habitación principal en suite con vestidor y baño completo.

Posibilidad de Cochera y Terraza Privada.

Excelente Ubicación, a tan solo 300 mts de la estación lado Norte. 
La información exhibida es al solo efecto orientativo, y la misma podrá ser libremente modificada por la firma inmobiliaria sin previo aviso.

Comodidades Comodidades

  • wifi

    Wifi

  • balcon

    Con balcón

Ubicación Ubicación

direccion Rodriguez Peña 838 (Piso 3°) Con Cochera, Castelar
  • codigo
    Código de la propiedad: EBU66801 AP7383369
  • aviso
    Reportar aviso

¿Querés reportar algún problema con este aviso?

Seleccioná el motivo:

cerrar

Contactar a la inmobiliaria

Contactar a la inmobiliaria Cerrar modal

Eduardo J. Carfi Propiedades

Departamento 4 ambientes en venta Castelar Norte

Propiedad