705988 | Departamento en Ituzaingó norte... | BuscadorProp
🔍

¡Buscamos por vos! ¡Tu búsqueda a todas las inmobiliarias!

¡Quiero probarlo!

compartir Compartir:

  • facebook
  • whatsapp
  • envelope
  • link
Quitar la propiedad de favoritos Guardá tu propiedad favorita

Departamento en Venta en Ituzaingó

direccion Lavalle Al 1000, Ituzaingó
direccion Ver en mapa
Venta
USD 92.038
Sin expensas
casas Departamentos
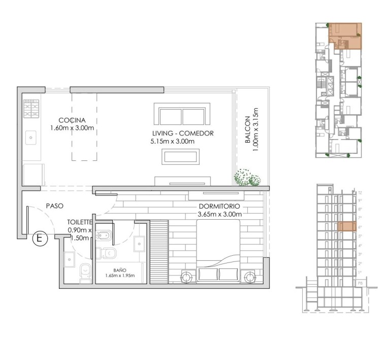
2 Ambientes
1 dormitorio
1 toilette
1 baño
Superficie total 49m2
Superficie cubierta 46m2
1 piso
Disposición Interno
Orientación Este

Departamento en Ituzaingó norte 2 ambientes , con financiación

Ubicado en el corazón de Ituzaingó Norte, este edificio propone una manera de vivir que combina comodidad, diseño y una ubicación cada vez más valorada. En una zona que creció notablemente en los últimos años, hoy se destaca por su entorno urbano renovado, su propuesta gastronómica, sus cafeterías, espacios de diseño y una vida cotidiana mucho más práctica y atractiva.

Es una opción ideal tanto para quienes buscan vivir cerca de todo, con movimiento y servicios a pocos pasos, como para quienes piensan en una inversión inteligente en una de las áreas con mejor proyección de la zona, donde la demanda de alquiler se mantiene activa y sostenida.

Desde el ingreso, el edificio transmite categoría y presencia, con un hall de doble altura que marca el carácter del proyecto y anticipa el nivel de detalle con el que fue concebido. Cada espacio común fue pensado para disfrutar, relajarse y compartir: en la azotea, la piscina y el solarium invitan a bajar el ritmo y disfrutar del aire libre; el gimnasio suma practicidad a la rutina diaria; y el SUM con parrilla ofrece un lugar ideal para encuentros sociales en un entorno cuidado y de excelente calidad.

Con una estética contemporánea, materiales nobles y terminaciones de primera categoría, este edificio se destaca por su muy buen gusto y por una propuesta integral que eleva la experiencia de vivir o invertir en Ituzaingó Norte.

Cocheras opcionales.

FINANCIACION, anticipo 30% y el saldo en 36 cuotas.

Contáctanos, tenemos diversidad de alternativas según cada necesidad.

Estamos en Lavalle 1076, Ituzaingó norte, tel 54 11 5620 3801

www.oddonepropiedades.com.ar

Instagram: oddonepropiedades



Estamos para acompañarte a cumplir tu sueño...
¿Te gustó?...Vení a conocerla...
Dejanos un mensaje y nos contactamos para visitarla.

Las medidas y fotos son orientativas y no revisten carácter contractual.
Viviana Oddone propiedades

Comodidades Comodidades

  • pileta

    Con pileta

  • parrilla

    Con parrilla

  • mascota

    Acepta mascotas

  • wifi

    Wifi

  • balcon

    Con balcón

  • solarium

    Solarium

Ubicación Ubicación

direccion Lavalle Al 1000, Ituzaingó
  • codigo
    Código de la propiedad: VAP7916202
  • aviso
    Reportar aviso

¿Querés reportar algún problema con este aviso?

Seleccioná el motivo:

cerrar

Contactar a la inmobiliaria

Contactar a la inmobiliaria Cerrar modal

Viviana Oddone Propiedades

Departamento en Ituzaingó norte 2 ambientes , con financiación

Propiedad