706465 | Venta/Financiación Departamentos... | BuscadorProp
🔍

¡Buscamos por vos! ¡Tu búsqueda a todas las inmobiliarias!

¡Quiero probarlo!

compartir Compartir:

  • facebook
  • whatsapp
  • envelope
  • link
Quitar la propiedad de favoritos Guardá tu propiedad favorita

Departamento en Venta en Rosario

direccion Alvear Al 1400, Rosario
direccion Ver en mapa
Venta
USD 115.000
Sin expensas
casas Departamentos
2 Ambientes
1 dormitorio
1 baño
1 cochera
Superficie total 55m2
Superficie cubierta 45m2
1 piso
Disposición Frente
Orientación Este

Venta/Financiación Departamentos Un Dormitorio Ventilacion Cruzada Amenities. Centro Rio

Venta/ Financiación Departamentos Un Dormitorio Balcón Amenities. Centro Rio
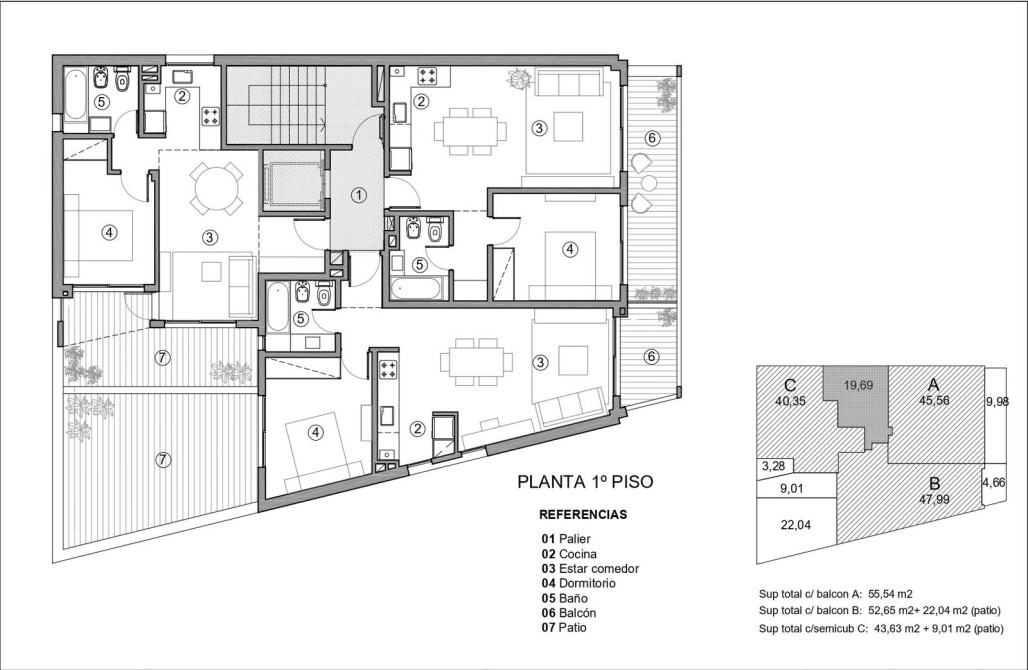
Piso 6, Unidad 1. Frente
Superficie cubierta 45,56m2
Superficie balcon: 9,98m2
Consultar por otras unidades disponibles.
Inicia tu inversión en un desarrollo sólido, moderno y con alto potencial de rentabilidad.
El Edificio India, en construcción bajo la modalidad de fideicomiso, se emplaza en calle Alvear al 1400, en el corazón de Rosario, con cercanía a universidades, centros de salud, Bv. Oroño y áreas recreativas.

Este proyecto ofrece una excelente oportunidad para inversores y usuarios finales, con
unidades funcionales y cómodas, y un local comercial en planta baja que potenciará la
dinámica del edificio.

Características del Proyecto:
* Edificio de Planta Baja + 6 pisos + Terraza con amenities
* Local comercial en PB (único)
* Unidades de 1 dormitorio desde 43 m² a 55 m² (con patios en primeros pisos o amplios balcones en pisos superiores)

* Orientación frente Este, con excelente luminosidad natural
* Amenities en terraza: SUM, parrillero, piscina, solárium y terraza de uso común
* Espacio para bicicletero
* Posibilidad de financiación durante obra
* Preventa con precios promocionales de lanzamiento
Ideal para:
* Inversores que buscan alta demanda de alquiler
* Primeras viviendas con bajos costos de ingreso
* Oportunidades de plusvalía asegurada en preventa

Fecha de entrega: Noviembre 2027

Comodidades Comodidades

  • pileta

    Con pileta

  • parrilla

    Con parrilla

  • patio

    Con patio

  • mascota

    Acepta mascotas

  • wifi

    Wifi

  • balcon

    Con balcón

  • calefaccion

    Calefacción

Ver todaschevron-down
Ver menoschevron-up

Ubicación Ubicación

direccion Alvear Al 1400, Rosario
  • codigo
    Código de la propiedad: EBU71457 AP7934663
  • aviso
    Reportar aviso

¿Querés reportar algún problema con este aviso?

Seleccioná el motivo:

cerrar

Contactar a la inmobiliaria

Contactar a la inmobiliaria Cerrar modal

Eigen Propiedades

Venta/Financiación Departamentos Un Dormitorio Ventilacion Cruzada Amenities. Centro Rio

Propiedad