648498 | Departamento MONOAMBIENTE en BAL... | BuscadorProp
🔍

¡Buscamos por vos! ¡Tu búsqueda a todas las inmobiliarias!

¡Quiero probarlo!

compartir Compartir:

  • facebook
  • whatsapp
  • envelope
  • link
Quitar la propiedad de favoritos Guardá tu propiedad favorita

Departamento en Venta en Balvanera

direccion Junin Al 500, Balvanera
direccion Ver en mapa
Venta
USD 58.449
Sin expensas
casas Departamentos
1 Ambiente
1 baño
Superficie total 20m2
Superficie cubierta 20m2
11 pisos
Disposición Frente
Orientación Norte-oeste

Departamento MONOAMBIENTE en BALVANERA - zona FACULTADES - TIPO ESTUDIO -

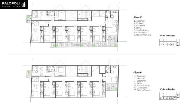
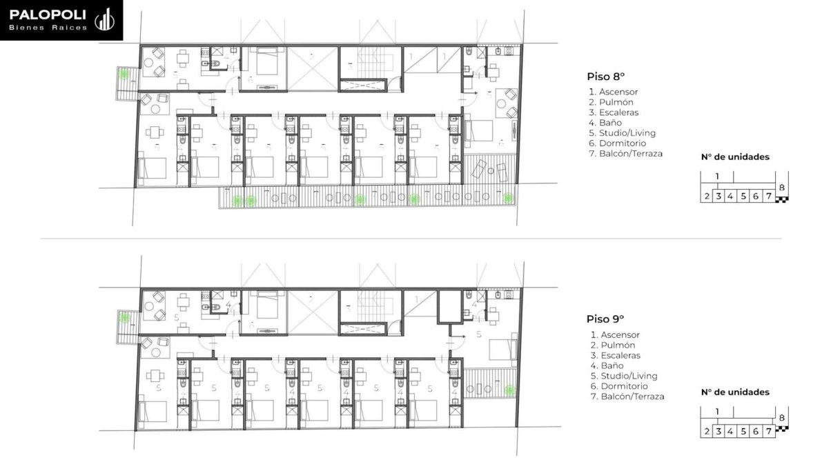
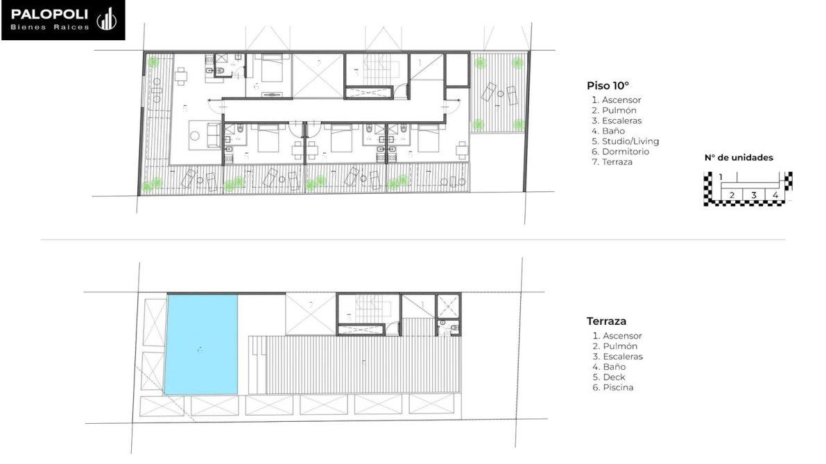
Unidades desde 18.60 m2 tipo estudio diseñadas para ofrecer un espacio eficiente optimizado para el confort.
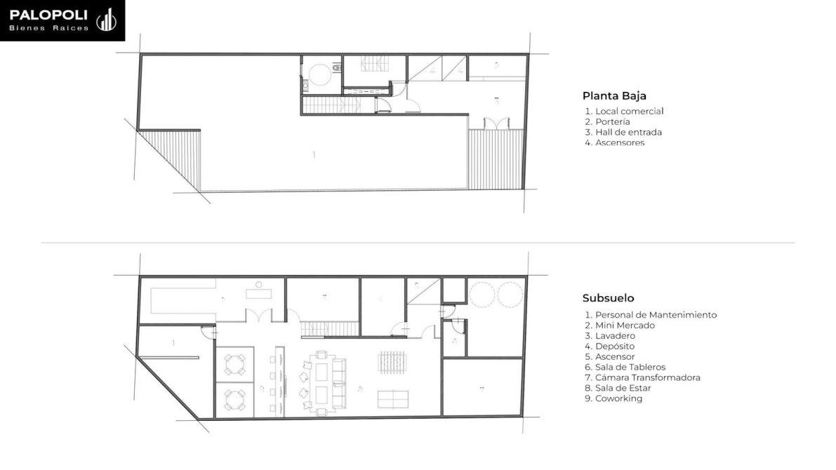
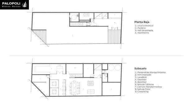
Edificio en construcción - proyecto que  contará  con 10 pisos de unidades residenciales. 
Un local comercial en PB -  espacios de Coworking y Sala de Estar,   Lavandería  y  Minimercado  en el subsuelo y una amplia Terraza con solárium y piscina  - espacios complementados con un sistema de Vigilancia integral. 
Una inversión sólida con unidades excepcionales, atractivas para aquellos que deseen habitarlas.  Pensadas para Estudiantes, Profesionales y Turistas. 
Ubicado a 3 cuadras de Av.  Callao , a 2 cuadras de Av. Corrientes y tambien de Av. Córdoba - Facultad de medicina -  Facultad de Ciencias Económicas - Facultad de Ciencias Sociales y de Odontología.
Hospital de Clínicas - Instituto Argentino de diagnostico y Tratamiento -  Sanatorio Sagrado Corazón-  
Muy próximo a líneas  D y B de subterráneos. y múltiples líneas de Colectivos.
Unidades funcionales de 1 y 2 ambientes desde u$s 58449.-  según m2  y Piso 
Consulta por Unidades disponibles. 

 

Matrícula y colegio: CUCICBA 5761 CMCPSM 2899

Financiacion Financiación

  • Apto para crédito

Comodidades Comodidades

  • wifi

    Wifi

  • solarium

    Solarium

Ubicación Ubicación

direccion Junin Al 500, Balvanera
  • codigo
    Código de la propiedad: PAP6790280
  • aviso
    Reportar aviso

¿Querés reportar algún problema con este aviso?

Seleccioná el motivo:

cerrar

Contactar a la inmobiliaria

Contactar a la inmobiliaria Cerrar modal

Palopoli Bienes Raices

Departamento MONOAMBIENTE en BALVANERA - zona FACULTADES - TIPO ESTUDIO -

Propiedad