676186 | Departamento Monoambiente con Ame... | BuscadorProp
🔍

¡Buscamos por vos! ¡Tu búsqueda a todas las inmobiliarias!

¡Quiero probarlo!

compartir Compartir:

  • facebook
  • whatsapp
  • envelope
  • link
Quitar la propiedad de favoritos Guardá tu propiedad favorita

Departamento en Venta en Balvanera

direccion Moreno Al 2933, Balvanera
direccion Ver en mapa
Venta
USD 72.551
Sin expensas
casas Departamentos
1 Ambiente
1 baño
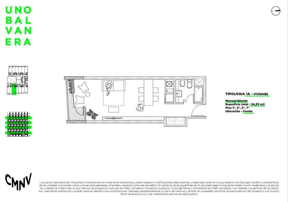
Superficie total 37m2
Superficie cubierta 35m2

Departamento Monoambiente con Amenities, apto profesional o vivienda entrega 2026

 Sobre la calle que conmemora a Mariano Moreno, forjador de la independencia y fundador de la Biblioteca Nacional, CMNV presenta UNA NUEVA OPORTUNIDAD DE

INVERSIÓN.

UF 119 Monoambiente

Un edificio único, en un barrio donde convergen la historia, la cultura y el futuro. Un área caracterizada por un tejido urbano consolidado, con centros de salud y educativos de todos los niveles, edificios históricos de valor arquitectónico y patrimonial, espacios verdes renovados y una amplia red de transporte público y nueva infraestructura, que ofrece conexiones con toda la ciudad en pocos minutos.

UNIDADES DE 1, 2 Y 3 AMBIENTES , TIPOLOGIAS DISEÑADAS PARA CONSULTORIO, OFICINA O VIVIENDA DESDE USD 1.700 M210 PISOS
1 SUBSUELO
45 COCHERAS
3 LOCALES COMERCIALES
EQUIPAMIENTO Y SERVICIOS EXCLUSIVOS:

Jardines y espacios abiertos de uso comúnTecho verde
Huerta urbana
Piscina
Solarium
Vestuarios
Salones de usos múltiples
Laboratorio de café
Centro de entrenamiento
Bicicleteros
Lavadero
Pequeño taller con herramientas
Wifi central en áreas comunes
Monitoreo CCTV y control de accesos 24hs

Iluminación led de bajo consumoCarpinerías exteriores con doble vidrio
laminado
Piso vinílico
Agua caliente central
Aire acondicionado individual en cada
unidad
Cocinas y baños equipados con
mueble

ENTREGA 2028

 
En cumplimiento a la ley 5115, se informa que el inmueble es accesible para personas con movilidad reducida o discapacidad física.



Corredor interviniente: Milagros Sarachaga CUCICBA 7799 Paolo Menghi CUCICBA 9171 CMCPDJLM 1005

La tasación, intermediación y la conclusión de las operaciones sobre esta propiedad son actividades exclusivas de este corredor matriculado, conforme las previsiones de la ley 20.266, la ley CABA 2340, la ley provincial 10.973 y sus modif. y las normas reglamentarias dictadas por los colegios departamentales.

Las medidas, superficies y expensas consignadas en la presente son aproximadas; y al solo efecto orientativo. Los datos definitivos son los que surgirán del título de la propiedad y de los comprobantes respaldatorios.

Comodidades Comodidades

  • pileta

    Con pileta

  • parrilla

    Con parrilla

  • calefaccion

    Calefacción

  • solarium

    Solarium

Ubicación Ubicación

direccion Moreno Al 2933, Balvanera
  • codigo
    Código de la propiedad: BALVANERAMONOAMBIENTE
  • aviso
    Reportar aviso

¿Querés reportar algún problema con este aviso?

Seleccioná el motivo:

cerrar

Contactar a la inmobiliaria

Contactar a la inmobiliaria Cerrar modal

Zipcode

Departamento Monoambiente con Amenities, apto profesional o vivienda entrega 2026

Propiedad