704094 | ALQUILER Local Comercial Olivos A... | BuscadorProp
🔍

¡Buscamos por vos! ¡Tu búsqueda a todas las inmobiliarias!

¡Quiero probarlo!

compartir Compartir:

  • facebook
  • whatsapp
  • envelope
  • link
Quitar la propiedad de favoritos Guardá tu propiedad favorita

Local en Alquiler en Olivos

direccion Local Comercial - Av. Maipu 2301, Olivos, Vicente Lopez, Olivos
direccion Ver en mapa
Alquiler
$ 7.200.000
Sin expensas
casas Locales
5 Ambientes
1 toilette
1 baño
29 años de Antigüedad
Superficie total 537m2
Superficie cubierta 537m2
Orientación Oeste

ALQUILER Local Comercial Olivos Avenida Divisible Seguridad

Local comercial de gran superficie divisible ubicado en zona de alto tránsito en Olivos, Vicente López.

IMPORTANTE: previo a coordinar visita es necesario realizar una llamada para explicar condiciones particulares del inmueble.

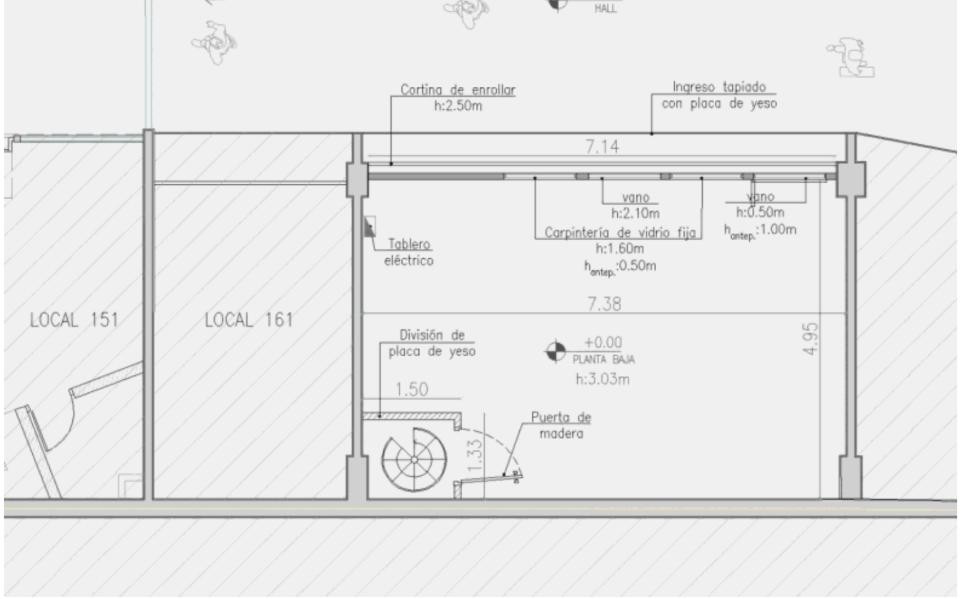
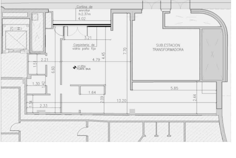
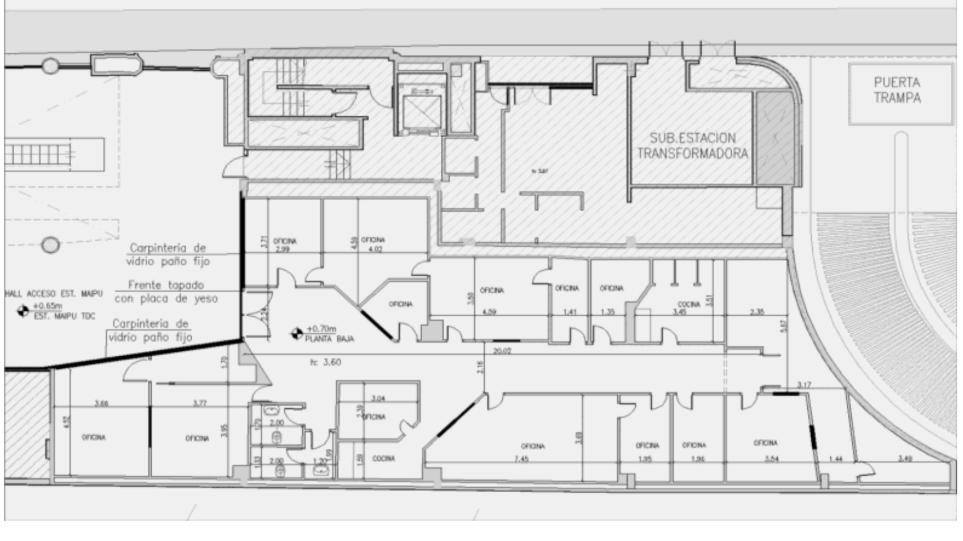
La publicación incluye planos para una mejor comprensión de la distribución.

Cuenta con aproximadamente 537 m² totales, distribuidos en planta baja (aprox. 500 m²) y entrepiso (aprox. 37 m²).

Espacio amplio, con gran desarrollo lineal y versatilidad, con posibilidad de subdivisión según necesidad o propuesta del proyecto.

El inmueble cuenta con previsión/infraestructura para el desarrollo de sanitarios, debiendo ejecutarse actualmente según el proyecto del interesado.

Canon mensual: $7.500.000 + IVA
Ajuste: trimestral por IPC
Depósito: dólares billete
Plazo estimado: hasta 50 meses
Honorarios de intermediación: 5% del valor total del contrato + IVA

Ideal para proyectos comerciales o institucionales que requieran escala, flexibilidad y capacidad de adaptación.

Para más información y detalles específicos, comunicarse previamente.

-Superficie total: 537,46 m² aprox.
-Posibles módulos: 35 m² | 15 m² | 71 m² (PB+EP) | 72 m² | 65 m² | 280 m²
-Frente lineal conjunto: aprox. 39,4 m
-Alturas útiles: variables (incluye PB y entrepiso en un módulo)
-Cerramientos: cortinas de enrollar
-Carpinterías: vidriadas
-Estado: a adecuar según rubro

Ficha técnica
-Ambientes: 1 (planta libre) + otros locales en modulo. 
-Plantas: PB + entrepiso parcial
-Divisible: sí (hasta 6 módulos combinables)
-Instalaciones: eléctrica/agua/cloaca a adecuar según rubro

• La publicación incluye planos, tour virtual y video para que puedas recorrer la propiedad en detalle antes de visitarla.
• ¿Querés vender o alquilar tu propiedad?
• Somos anunciantes Premier en Zonaprop, Mercado Libre Oro y Argenprop Adinco Premium. Trabajamos con fotografía profesional, video, recorrido virtual, planos y estrategia personalizada para lograr el mejor resultado.
• Si necesitás una tasación profesional o querés que trabajemos tu propiedad con este nivel de presentación, escribime y lo conversamos sin compromiso.

Accesibilidad (Ley 5115)
-En cumplimiento a la ley 5115, se informa que el inmueble ES accesible para personas con movilidad reducida.



Corredor interviniente: Milagros Sarachaga CUCICBA 7799 Paolo Menghi CUCICBA 9171 CMCPDJLM 1005

La tasación, intermediación y la conclusión de las operaciones sobre esta propiedad son actividades exclusivas de este corredor matriculado, conforme las previsiones de la ley 20.266, la ley CABA 2340, la ley provincial 10.973 y sus modif. y las normas reglamentarias dictadas por los colegios departamentales.

Las medidas, superficies y expensas consignadas en la presente son aproximadas; y al solo efecto orientativo. Los datos definitivos son los que surgirán del título de la propiedad y de los comprobantes respaldatorios.

Comodidades Comodidades

  • wifi

    Wifi

Ubicación Ubicación

direccion Local Comercial - Av. Maipu 2301, Olivos, Vicente Lopez, Olivos
  • codigo
    Código de la propiedad: MATMEN-a14
  • aviso
    Reportar aviso

¿Querés reportar algún problema con este aviso?

Seleccioná el motivo:

cerrar

Contactar a la inmobiliaria

Contactar a la inmobiliaria Cerrar modal

Zipcode

ALQUILER Local Comercial Olivos Avenida Divisible Seguridad

Propiedad